ATTRAKTIV UND MODERN: Gewerbeanwesen in BL-Frommern

Beschreibung

Ansprechende Atmosphäre in gepflegten Räumlichkeiten für Ihr Business …. fast alles ist möglich!

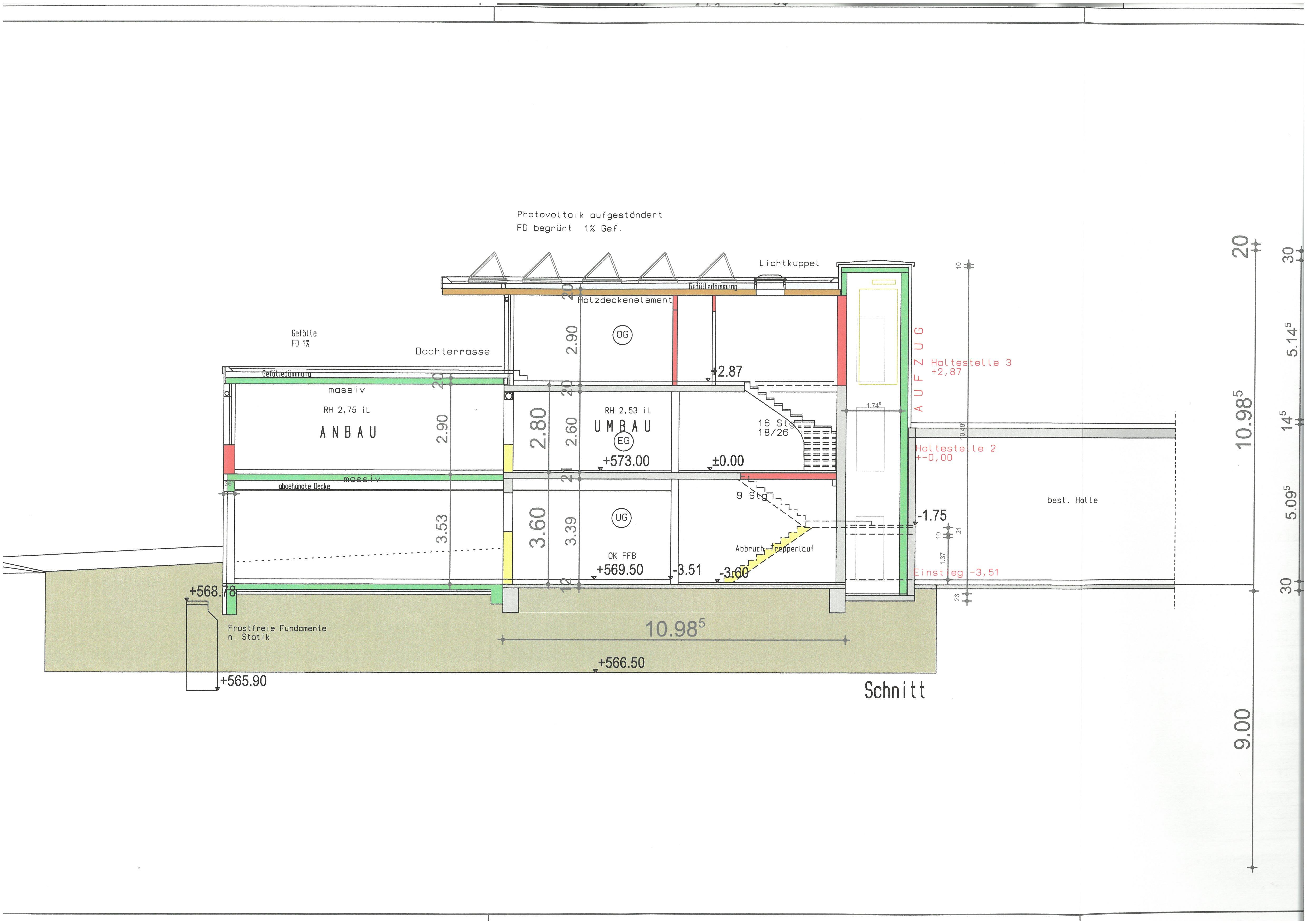
Das Gebäude wurde 1973 erbaut, die Lagerhalle entstand 1984 und im Jahr 2014 wurde es komplett modernisiert, angebaut und aufgestockt. Es entspricht den heutigen Anforderungen mit Aufzug und großen Fensterfronten mit elektrischen Jalousien.

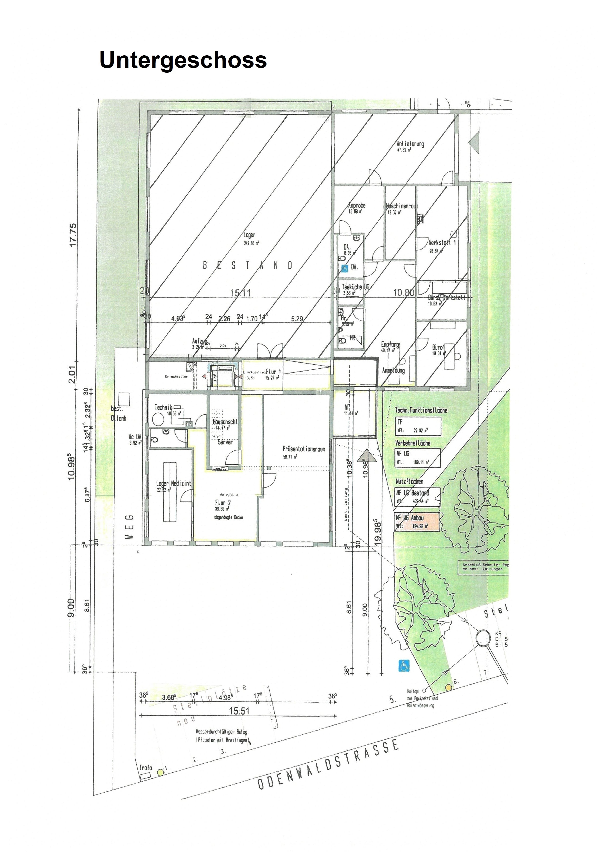
Im UG sind Büros, Werkstatt und verschiedene Lagerräume, die Anlieferung erfolgt über zwei Seiten mit direkter Zufahrt. Die Fläche beträgt insgesamt 736 m². Über den Empfang geht es zum Aufzug, welcher in alle 3 Etagen führt.

Das Erdgeschoss erreicht man auch über ein großzügiges Treppenhaus. Es sind insgesamt fünf Räume mit Sozialraum, Teeküche und großem WC (behindertengerecht). Die Fläche beträgt 268 m².

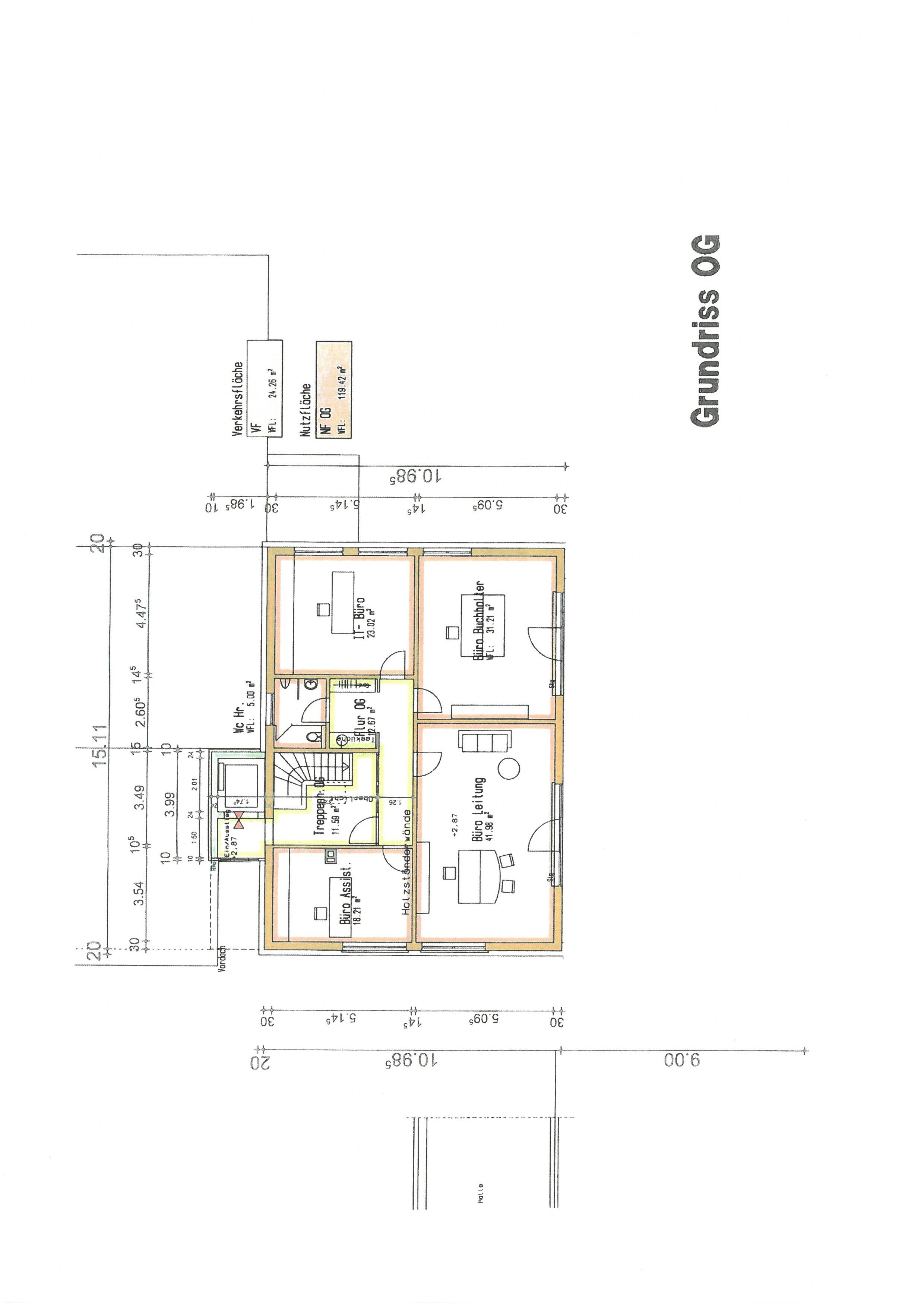
Die darüberliegende Chefetage besteht aus vier großen Büros und einer wunderschönen Dachterrasse mit Ausblick. Die Fläche beträgt 144 m².

Das große Grundstück lässt einen weiteren Anbau zu, für Expansionen in Werk-/ Produktion-/ Lagerflächen oder auch für weitere Büroflächen.

Ausstattung

Dieses moderne Firmengebäude mit vielen Glasflächen sorgt für ein sonniges und attraktives Arbeitsklima:

– elektrische Jalousien an allen Fensterflächen
– 3-fach verglaste Alu-Fenster
– Lüftungsanlage und Klimatisierung
– eingebaute LED-Leuchten
– moderne Sanitäranlagen
– Serverraum
– Kfz-Stellplätze
– begrüntes Flachdach
– Öl-ZH (2014)

Bezugsfrei zum 31.12.2026.

Energieausweis ist in Arbeit.

Lage

Im Mischgebiet direkt in Balingen-Frommern steht das moderne und ansprechende Gebäude. Es bietet eine erstklassige Möglichkeit, um ein erfolgreiches Geschäft zu betreiben – ideal für Vertrieb, Verkauf, Produktion oder Dienstleistungen. Nutzen Sie das Potenzial des schönen und modernisierten Gebäudes mit ausreichend Stellplätzen.

Die gute Anbindung zur B27 und B463 sind erfolgversprechende Voraussetzungen für Ihre Firma.

Provision / Hinweise

Zuzüglich zum Kaufpreis sind folgende Nebenkosten vom Käufer zu entrichten: Grunderwerbsteuer (5%), Notargebühren (ca. 2%) und Maklergebühren (3,57% inkl. der gesetzlichen Mehrwertsteuer).

Interesse an dieser Immobilie?

Kontaktieren Sie uns für weitere Informationen oder eine Besichtigung.

Cookie Consent mit Real Cookie Banner