BESTE 1A-LAGE, TOP-RENDITE: In der Fußgängerzone von Balingen

Beschreibung

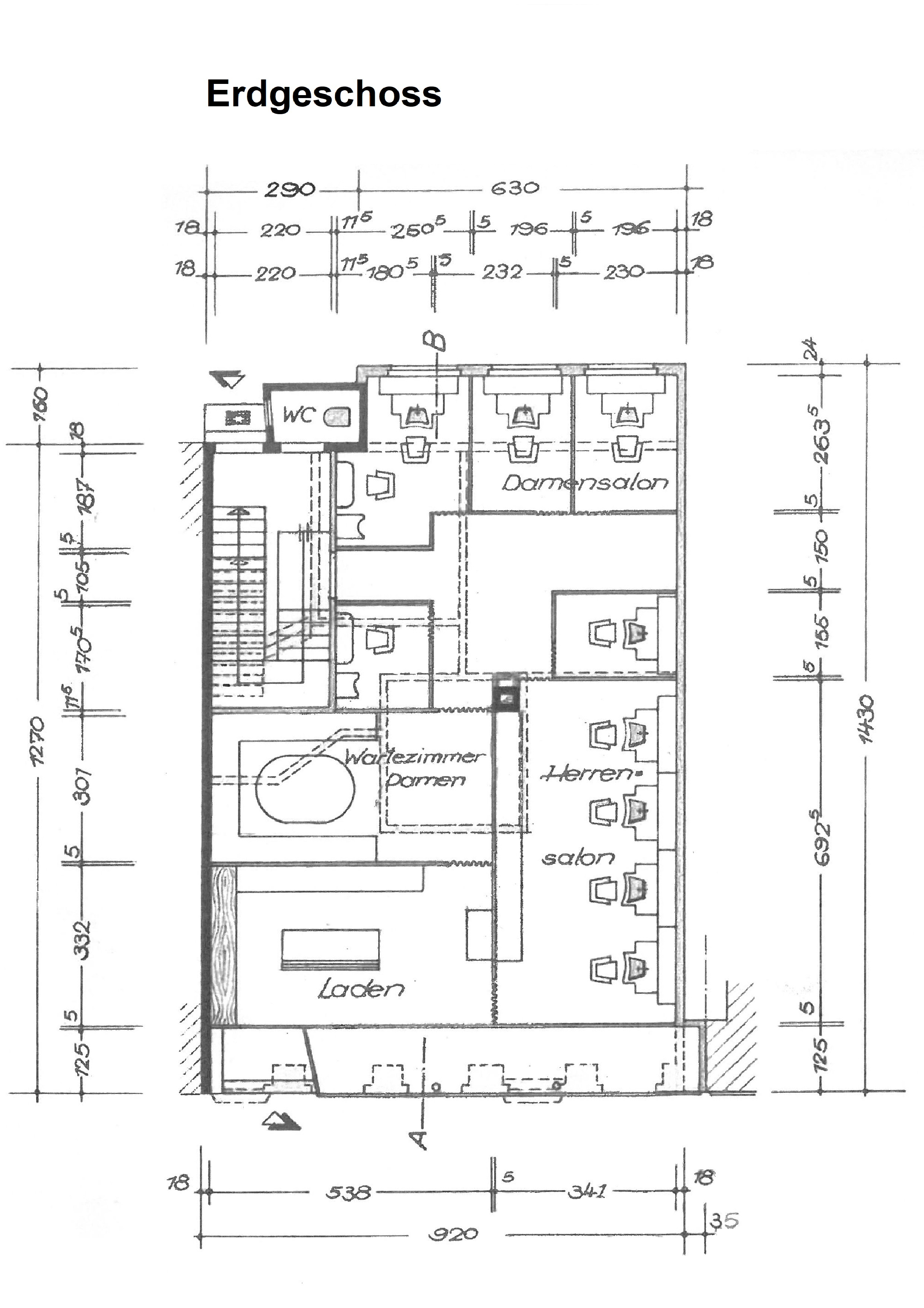
Dieses Haus bietet im Erdgeschoss ein schönes Ladengeschäft mit ca. 106 m² in ansprechender Atmosphäre in gepflegten Räumen.

Im ersten Obergeschoss ist eine großzügige 3-Zimmer-Wohnung mit Wohnküche, Badezimmer und einem großen Balkon zum Hofraum. Die Wohnung hat eine Fläche von ca. 100 m².

Das zweite Obergeschoss hat den gleichen Grundriss. Im Jahr 1983 wurde das Dachgeschoss ausgebaut. Es entstand eine große Maisonette-Wohnung mit ca. 181 m² Wohnfläche. Der Dachspitz ist über eine Auszugstreppe erreichbar, er ist isoliert und verfügt über einen Heizkörper.

Vermietet sind die beiden Wohnungen. Das Ladengeschäft wird aktuell zur Vermietung angeboten oder kann auch selbst genutzt werden.

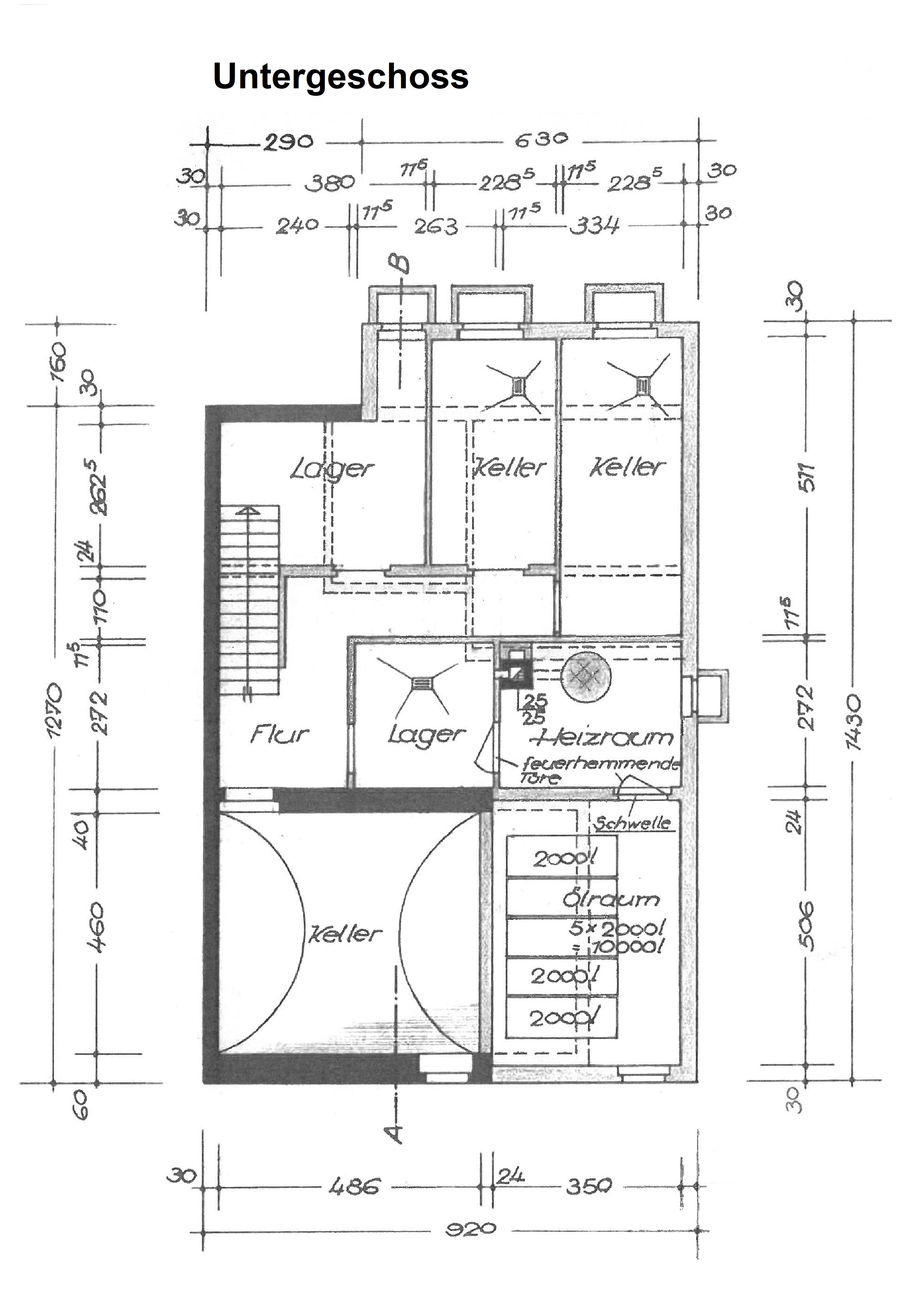
Das Haus ist komplett unterkellert mit einem großen Gewölbekeller und einem Heizraum. Für jede Einheit steht ein Abstellraum zur Verfügung.

Ausstattung

Das ursprüngliche Baujahr des Hauses ist nicht bekannt. Am Haus wurden seit der Erstellung immer wieder Baumaßnahmen wie Umbau, Anbau und Erneuerung vorgenommen.

Es ist wie folgt ausgestattet:

– Öl-Zentralheizung (1993)
– 3-adrige Elektrik
– weiße Kunststofffenster (2006)
– Aufdachisolierung + Dacherneuerung (1985)
– Ausbau zur Maisonette-Wohnung (1985)

Lage

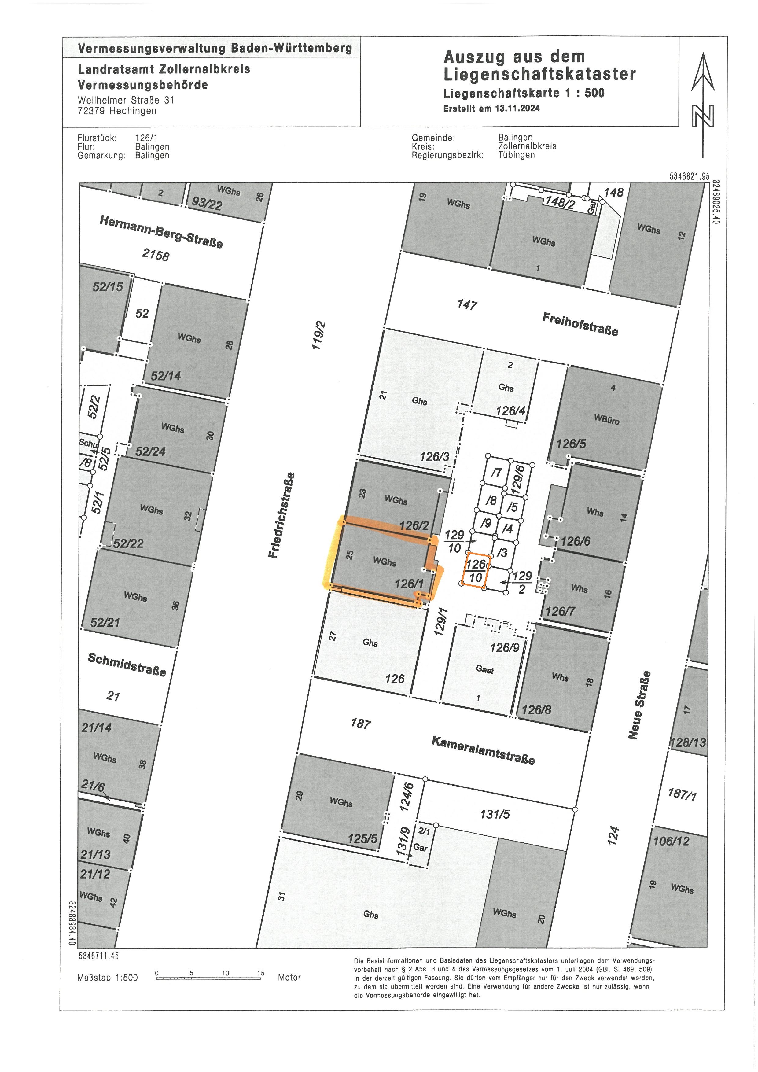
In bester Lage der Innenstadt von Balingen an der Friedrichstraße steht das Wohn- und Geschäftshaus.

In Balingen sind alle Einkaufsmöglichkeiten für den täglichen Bedarf und alle Ärzte, Apotheken, Schulen, Kindergärten usw. fußläufig erreichbar. In der schönen Fußgängerzone lässt sich wunderbar flanieren, es gibt viele ansässige Café’s und Bar’s – Sie sind einfach MITTENDRIN!

Parkflächen für Ihre Kunden sind in der Balinger Innenstadt überall kostenlos vorhanden. Zum Bahnhof sind es 5 Gehminuten.

Provision / Hinweise

Zuzüglich zum Kaufpreis sind folgende Nebenkosten vom Käufer zu entrichten: Grunderwerbsteuer (5%), Notargebühren (ca. 2%) und Maklergebühren (3,57% inkl. der gesetzlichen Mehrwertsteuer).

Interesse an dieser Immobilie?

Kontaktieren Sie uns für weitere Informationen oder eine Besichtigung.

Cookie Consent mit Real Cookie Banner