BEZUGSFREI UND MITTENDRIN: 2,5-Zimmer-Wohnung Hechingen

Beschreibung

Diese Wohnung befindet sich im 1. Obergeschoss in einem Mehrfamilienhaus mit insgesamt 9 Parteien. Das Haus verfügt über einen Aufzug.

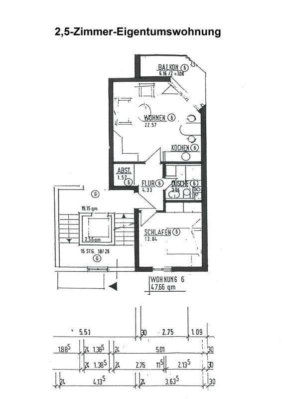
Über das helle und großzügige Treppenhaus erreicht man die Wohnung. Direkt im Flur ist ein Abstellbereich für Ihre Garderobe und vieles mehr. Daneben ist der helle und großzügige Wohnraum mit Küchenzeile. Über die große Verglasung gelangt man auf den Balkon mit einer Größe von ca. 6m²
Das Schlafzimmer bietet ausreichend Platz für ein Doppelbett und einen großen Schrank, daneben ist das Duschbad mit Anschluss für die Waschmaschine.

Ein Keller gehört zur Wohnung, sowie einen Stellplatz in einer Tiefgarage.

im Keller gibt es zudem eine Gemeinschaftswaschküche und einen Fahrradraum.

Kurzfristig bezugsfrei.

Ausstattung

– Gas-Zentralheizung
– Einbauküche
– Laminatboden
– Duschbad
– Tiefgarage
– Aufzug

Lage

Die Immobilie befindet sich in zentraler Lage zwischen Ober- und Unterstadt.

Die alte Residenzstadt Hechingen verfügt über alle Schularten, zahlreiche Behörden und namhafte Unternehmen, Ärzte und Apotheken für den täglichen Bedarf.

Durch den Ausbau der B27 reduziert sich die Entfernung zur Universitätsstadt Tübingen bzw. zum Flughafen Echterdingen der Landeshauptstadt Stuttgart auf die Entfernung von 10 bzw. 30 Minuten Autofahrt.

Provision / Hinweise

Zuzüglich zum Kaufpreis sind folgende Nebenkosten vom Käufer zu entrichten: Grunderwerbsteuer (5%), Notargebühren (ca. 1,5%) und Maklergebühren (3,57% inkl. der gesetzlichen Mehrwertsteuer).

Interesse an dieser Immobilie?

Kontaktieren Sie uns für weitere Informationen oder eine Besichtigung.

Cookie Consent mit Real Cookie Banner