DOPPELTES WOHNGLÜCK: 2 Doppelhaushälften in Balingen-Zillhausen

Beschreibung

Das 2-Familienhaus bestehend aus zwei voneinander getrennten Doppelhaushälften bietet auf 197 m² Wohnfläche den idealen Rahmen für Ihr zukünftiges Eigenheim mit der Möglichkeit, die zweite Hälfte selbst zu bewohnen oder als Kapitalanlage zu nutzen.

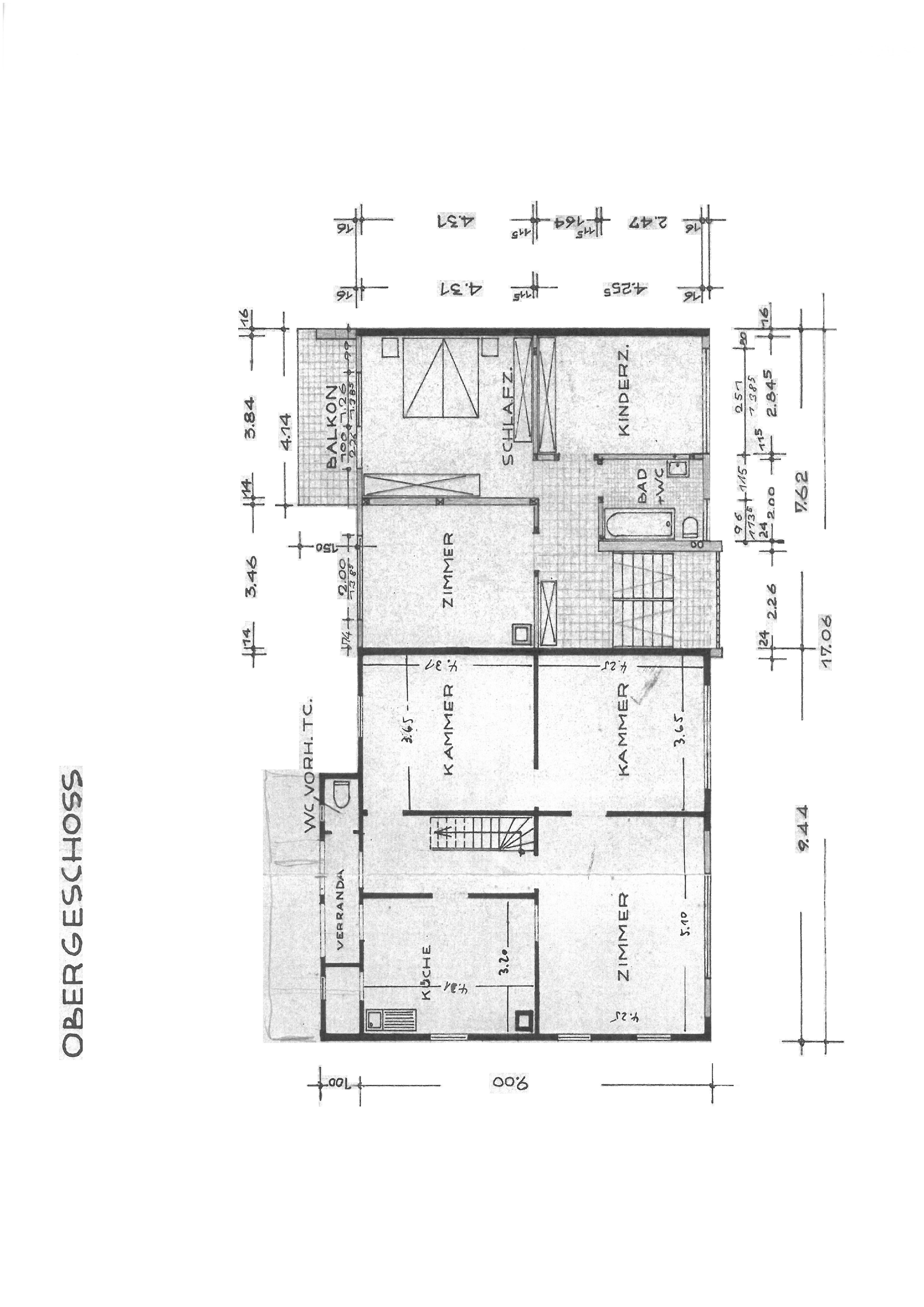
In beiden Wohneinheiten gibt es im EG je eine Einbauküche, einen geräumigen Wohn-Essbereich, ein weiteres Zimmer sowie ein Gäste-WC.

Im OG befinden sich je drei Zimmer sowie ein Tageslichtbad mit Wanne, WC und Waschbecken.

Das Haus ist teilweise unterkellert.

Zusätzlich gibt es einen Balkon, eine Terrasse, zwei separate Einzelgaragen und einen Carport hinter dem Haus.

Eine der beiden Doppelhaushälften ist aktuell noch bewohnt, wird jedoch kurzfristig frei.

Ausstattung

Das gepflegte 2-Familienhaus kann folgende Ausstattung aufweisen:

– Pelletheizung (Bj. 2022) mit 7 Tonnen Pelletlager
– 2-fach isolierverglaste Holzfenster (1960)
– Terrasse
– Balkon
– 1 sep. Einzelgarage
– Carport

Der Energieausweis ist in Bearbeitung und kann zur Besichtigung vorgelegt werden.

Lage

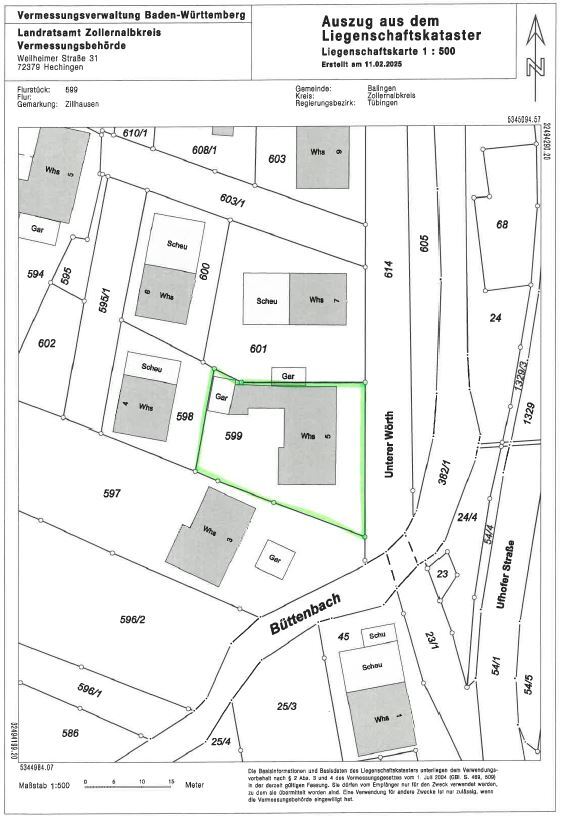
In ruhiger Randlage von Balingen-Zillhausen stehen die beiden Doppelhaushälften auf 611 m² Grundstücksfläche.

Die Gemeinde Zillhausen mit rund 900 Einwohnern ist ein idyllischer Stadtteil von Balingen mitten im Zollernalbkreis auf der Schwäbischen Alb, etwa auf halbem Weg zwischen Stuttgart und dem Bodensee. Für Naturliebhaber bietet Zillhausen das angrenzende Naturschutzgebiet „Irrenberg“, die Schalksburg sowie den Aussichtspunkt Böllat. Im ca. 10 km entfernten Zentrum Balingens finden Sie alle Geschäfte des täglichen Bedarfs, Schulen und Kindergärten, Ärzte und Apotheken sowie Restaurants und Cafés.

Provision / Hinweise

Zuzüglich zum Kaufpreis sind folgende Nebenkosten vom Käufer zu entrichten: Grunderwerbsteuer (5%), Notargebühren (ca. 2%) und Maklergebühren (3,57% inkl. der gesetzlichen Mehrwertsteuer).

Interesse an dieser Immobilie?

Kontaktieren Sie uns für weitere Informationen oder eine Besichtigung.