EIGENE HALLE, BEGEHRTE LAGE: Ebingen

Beschreibung

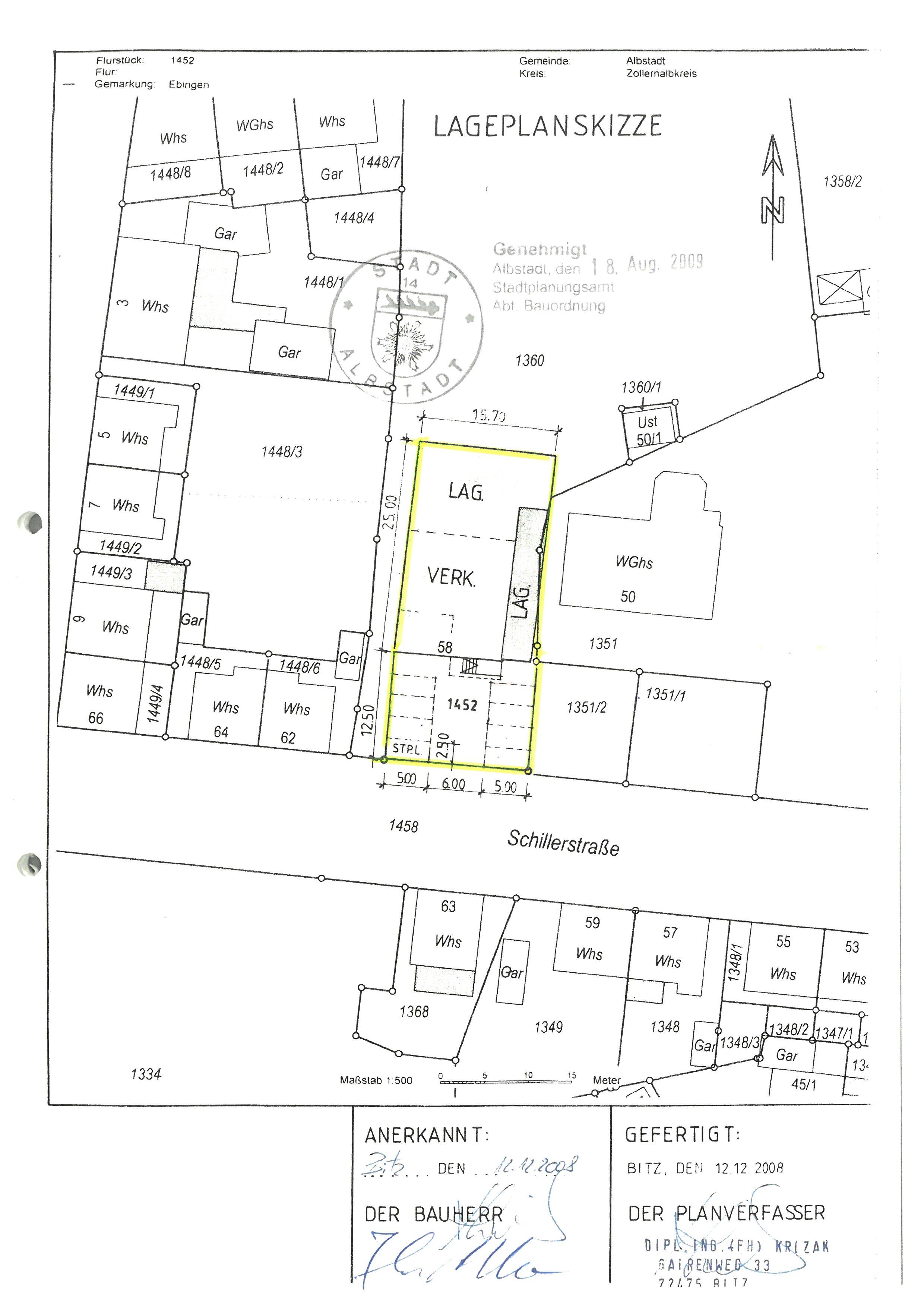
Entdecken Sie dieses vielseitige Gewerbeobjekt zur Miete in Albstadt. Das Grundstück umfasst großzügige 596 m² und bietet ausreichend Platz für Ihre geschäftlichen Aktivitäten. Dieses Objekt vereint Funktionalität mit Komfort und bietet eine ideale Lösung für Unternehmen, die nach einem zuverlässigen und gut ausgestatteten Standort suchen.

Das Gebäude ist wie folgt aufgeteilt und bietet größtmögliche Flexibilität:
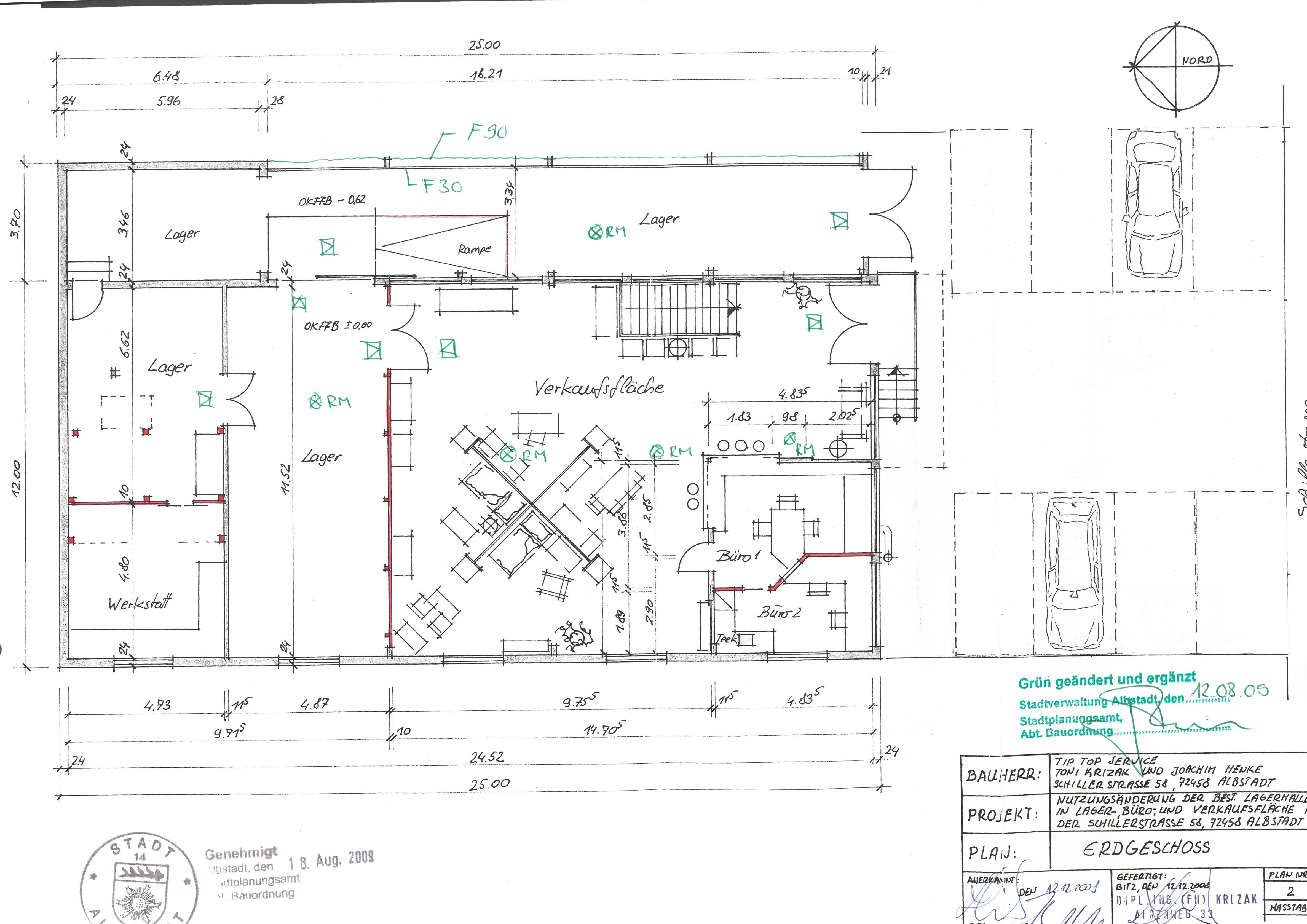
Im Erdgeschoss findet die Kerntätigkeit statt, dort befindet sich ein großer Gewerberaum mit Büro, Verkaufsfläche und Lagerraum. Diese Fläche hat eine Größe von ca. 170m².
Über eine Holztreppe erreicht man im hinteren Bereich des Gebäudes einen weitere Lagerfläche, hier ist ein Zwischenboden eingezogen.
Auf der rechten Gebäudeseite befindet sich eine befahrbare Garage mit einer Länge von ca. 24,5 m welche zur Anlieferung mit Laderampe und der Hauptfläche verbunden ist, es sind ca. 79 m² Fläche.

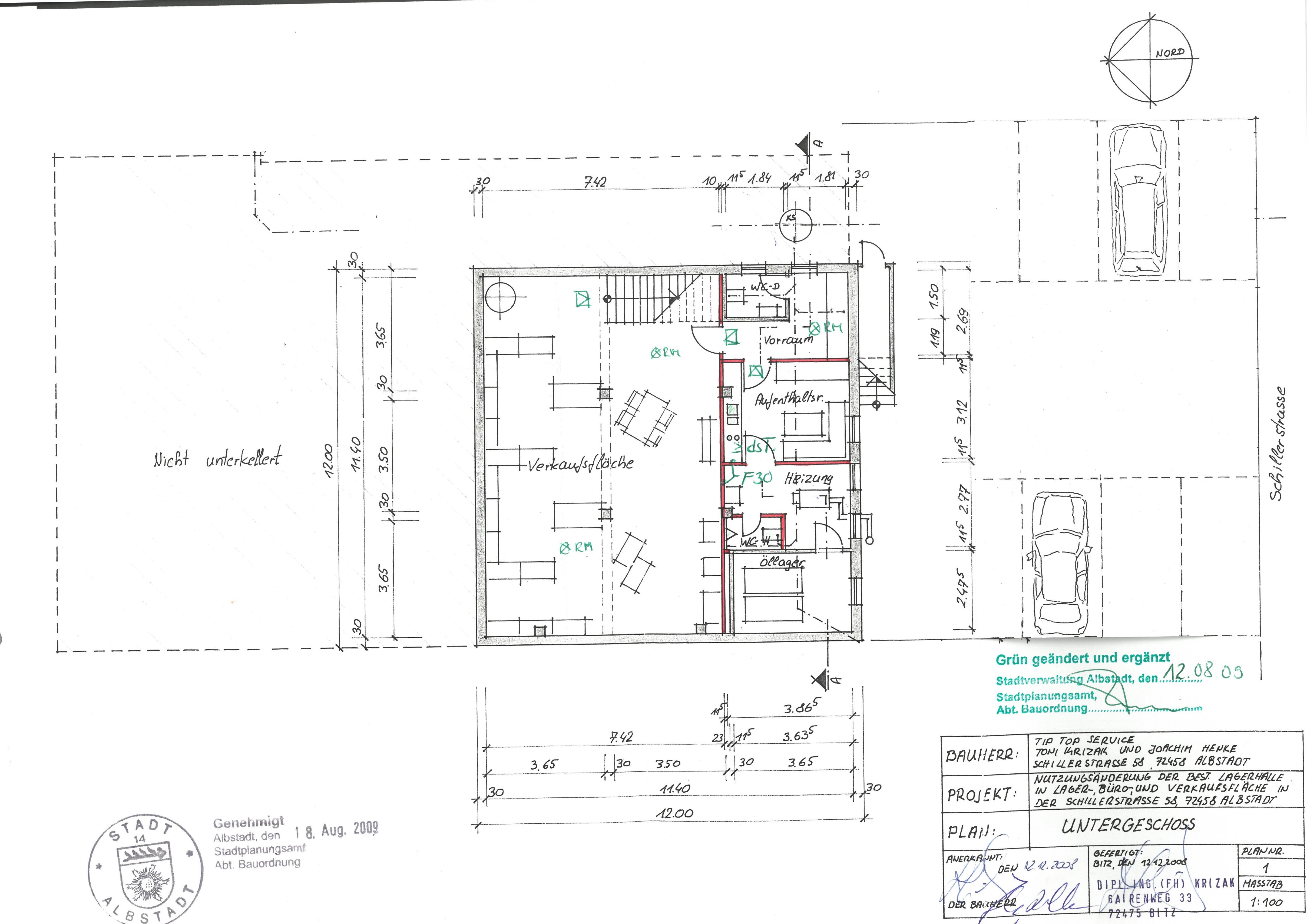
Im UG befindet sich ein weiterer großer Lager oder Produktionsraum mit einer Fläche von insgesamt ca. 130 m² mit kleiner Küchenzeile, separaten WC und der Öl-Zentralheizung.

Vor dem Gebäude ist ein großer Hofraum mit insgesamt 8 Parkplätzen für Sie und Ihre Kunden.

Ausstattung

– Öl-Zentralheizung
– 2 WC
– Garage
– Laderampe
– Teppich-Betonböden
– neues Dach mit Wärmeisolierung
– neuer Fassadenanstrich

Lage

Albstadt Ebingen ist ein lebendiger Stadtteil mit einer guten Infrastruktur und zahlreichen Annehmlichkeiten.

Die Schillerstraße selbst liegt in einem etablierten Geschäftsviertel, das sowohl für Büros als auch für Lagerflächen sehr gefragt ist. Die unmittelbare Nähe zur Innenstadt ermöglicht einen bequemen Zugang zu öffentlichen Verkehrsmitteln, Geschäften und Restaurants.

Darüber hinaus profitieren Mieter von der hervorragenden Anbindung an das Straßennetz. Die Bundesstraße B464 ist nur wenige Minuten entfernt und bietet eine schnelle Verbindung zu den Autobahnen A81 und A7, was den Standort für Unternehmen mit logistischen Anforderungen besonders attraktiv macht.

Die Umgebung zeichnet sich durch eine Mischung aus historischen Gebäuden und modernen Geschäftsimmobilien aus, was ein ansprechendes Ambiente schafft. Die Nähe zu Grünflächen und Parks ermöglicht zudem eine angenehme Arbeitsatmosphäre mit Möglichkeiten zur Entspannung in der Mittagspause.

Insgesamt bietet die Schillerstraße in Albstadt Ebingen eine hervorragende Lage für Unternehmen, die Wert auf eine zentrale und dennoch ruhige Geschäftsadresse legen.

Sonstiges

Die Außenfassade wird aktuell neu gestrichen.

Provision / Hinweise

Alle Angaben ohne Gewähr. Der Mieter hat eine Maklercourtage in Höhe von 2,38 Monatsmieten inklusive der gesetzlichen Mehrwertsteuer an Christiana Baur Immobilien zu bezahlen. Die Courtage ist fällig bei Mietvertragsabschluss.

Interesse an dieser Immobilie?

Kontaktieren Sie uns für weitere Informationen oder eine Besichtigung.