GEMÜTLICH WOHNEN: 3-Zimmer-Whg mit Aussicht in Hechingen

Beschreibung

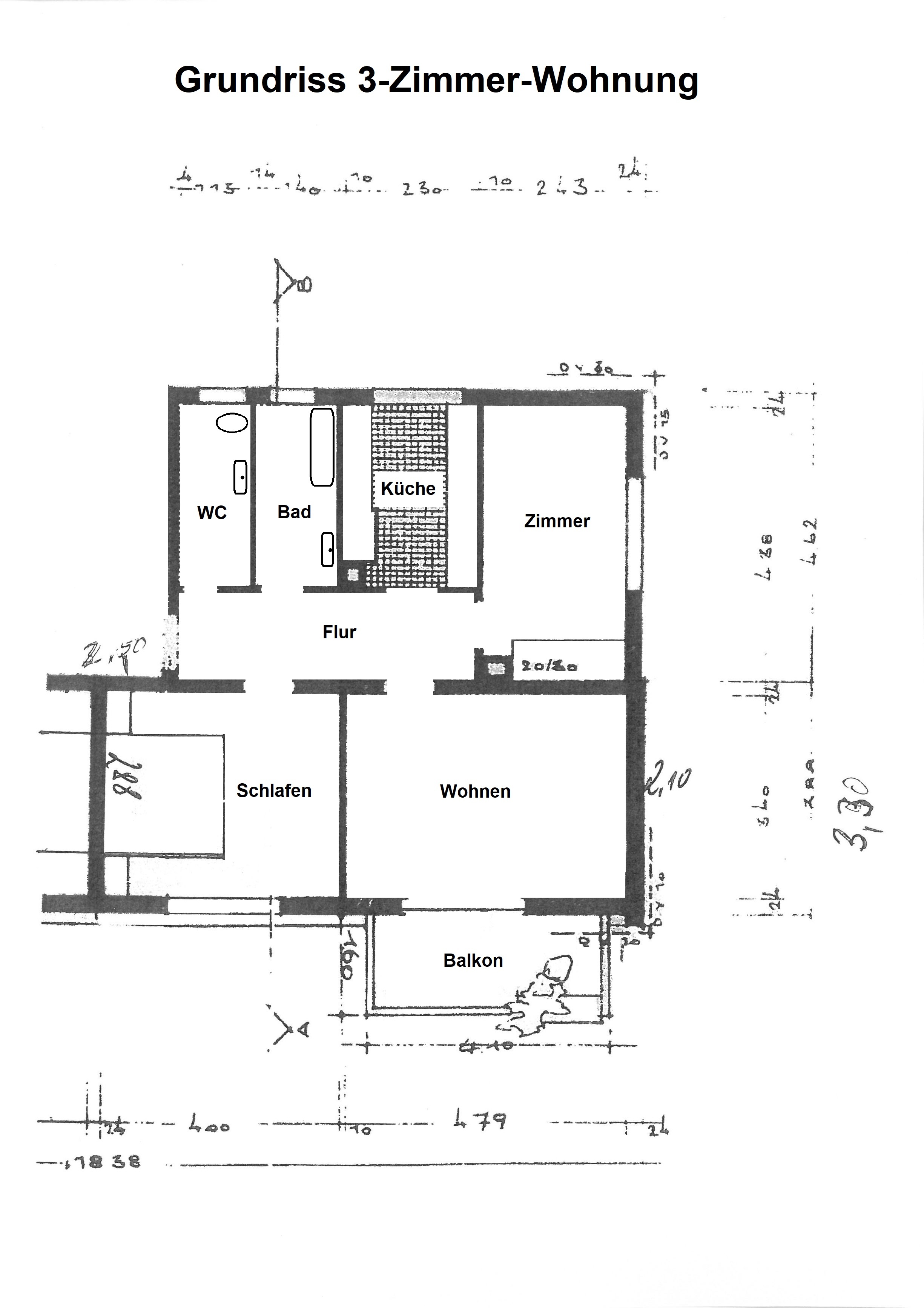
Die sehr gepflegte 3-Zimmer-Wohnung mit großen Fenstern bietet ein helles, einladendes Zuhause mit reichlich Platz für zwei Personen:

Der Flur verbindet Küche, Wohnzimmer, Bad, separates WC, ein Schlafzimmer und ein weiteres Zimmer, welches als Esszimmer, Büro, Kinder- oder Gästezimmer genutzt werden kann. Der Wohn- und Essbereich ist großzügig – hier steht der Öl-Kachelofen, welcher zur Winterzeit und an kalten Tagen die ganze Wohnung gemütlich einheizt.

Im Untergeschoss ist ein geräumiger Abstellraum, ein gemeinsamer Wasch-Trockenraum und ein Abstellplatz für die Fahrräder zur Verfügung.

Ausstattung

Die gemütliche 64 m² große Wohnung ist wie folgt ausgestattet:

– Einbauküche
– Tageslichtbad, sep. WC
– Öl-Kachelofen
– neuer Warmwasserboiler (2023)
– 2fach-isolierverglaste Kunststofffenster
– Innenisolierung
– Laminat + Fliesen
– Balkon mit Markise
– großer Kellerraum

Lage

In ruhiger Lage am Ortsrand von Hechingen befindet sich diese 3-Zimmer-Wohnung im 1. OG in einem 12-Familienhaus.

Hechingen ist die drittgrößte Stadt im Zollernalbkreis und liegt zentral in Baden-Württemberg, am Westrand der Schwäbischen Alb. Tübingen erreicht man in ca. 22 km und Balingen nach ca. 18 km, die Landeshauptstadt Stuttgart in ca. 60 km. Die Attraktion der Stadt ist die nahegelegene Burg Hohenzollern.

In Hechingen befinden sich verschiedene Schulen, Kindergarten, die Kindertagesstätte, das moderne Hallenbad und das Freibad, Tennisplätze und sämtliche Einkaufsmöglichkeiten.

Provision / Hinweise

Zuzüglich zum Kaufpreis sind folgende Nebenkosten vom Käufer zu entrichten: Grunderwerbsteuer (5%), Notargebühren (ca. 2%) und Maklergebühren (3,57% inkl. der gesetzlichen Mehrwertsteuer).

Interesse an dieser Immobilie?

Kontaktieren Sie uns für weitere Informationen oder eine Besichtigung.

Cookie Consent mit Real Cookie Banner