GUT VERMIETETE WHG: 2,5-Zimmer in Frommern

Beschreibung

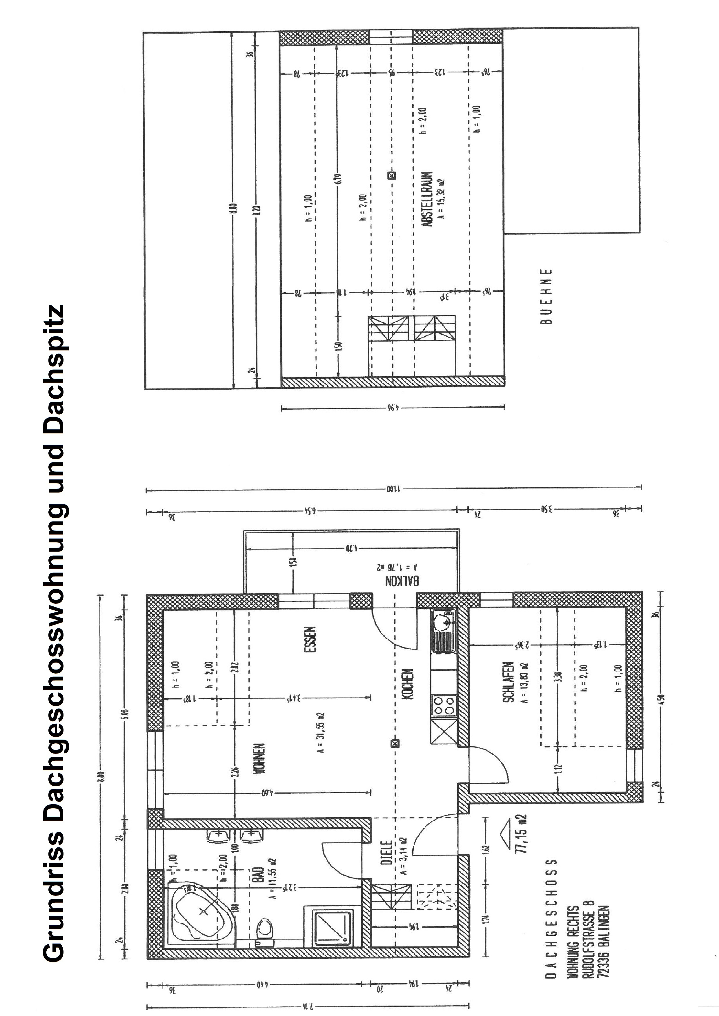
Gepflegte Wohnung im Dachgeschoss des Hauses auf der Südseite – Sonne pur den ganzen TAG!

Die Wohnung ist gut vermietet und die Mieterin fühlt sich sehr wohl.

Die Aufteilung der Wohnung ist wie folgt:

Nach dem Öffnen der Wohnungstür wird man in der offenen Diele empfangen. Das großzügige Zimmer mit Zugang auf den Balkon ist ein wunderbarer Wohnbereich mit Essbereich und einer modernen Einbauküche. Das große Badezimmer hat eine schöne Eckbadewanne, eine separate Dusche, WC und einen modernen Doppelwaschtisch. Über das Fenster wird man von der Morgensonne begrüßt. Ein Schlafzimmer bietet Platz für Bett sowie Schrank und auch eine kleine Arbeitsecke findet hier Platz.

Über eine Treppe im Eingangsbereich erreichen Sie den ausgebauten Dachspitz.

Zur Wohnung gehören ein großer Keller und eine Waschküche mit Platz für die Waschmaschine und den Trockner. Ein separater Fahrradraum für die Bewohner steht ebenfalls zur Verfügung.

Ausstattung

Gut ausgestattete Wohnung mit großen Fliesen und modernen Vinylböden.

Sonnenbalkon auf der Südseite.

Die monatlichen Nebenkosten betragen € 243,–, der Eigentümeranteil liegt bei € 80,–.

Energieausweis: Verbrauchsausweis, 84,43 kWh, Energieklasse C, Gas-ZH Bj. 2013.

Lage

Mitten in Frommern in einem gewachsenen Gebiet steht das 6-Familienhaus aus dem Jahr 2013. Es ist eine Sackgasse und nur Anlieger und Besucher fahren am Haus vorbei.

Frommern ist der zweitgrößte Stadtteil von Balingen im Zollernalbkreis in Baden-Württemberg. Von hier aus erreicht man bequem zu Fuß die Geschäfte des täglichen Bedarfs, Schulen, Kindergarten, den Bahnhof und auch die Waldorfschule ist nicht fern.

Frommern liegt in unmittelbarer Nähe der Bundesstraße 463 Balingen–Sigmaringen.

Provision / Hinweise

Zuzüglich zum Kaufpreis sind folgende Nebenkosten vom Käufer zu entrichten: Grunderwerbsteuer (5%), Notargebühren (ca. 2%) und Maklergebühren (3,57% inkl. der gesetzlichen Mehrwertsteuer).

Interesse an dieser Immobilie?

Kontaktieren Sie uns für weitere Informationen oder eine Besichtigung.

Cookie Consent mit Real Cookie Banner