HIER WERDEN SIE GESEHEN: Büro/Praxis Frommern

Beschreibung

Wunderbare Räumlichkeiten für vielfältige Möglichkeiten stehen Ihnen hier zur Verfügung. Egal ob Praxis, Büro, Kanzlei, Ausstellung … einfach gut aufgestellt:

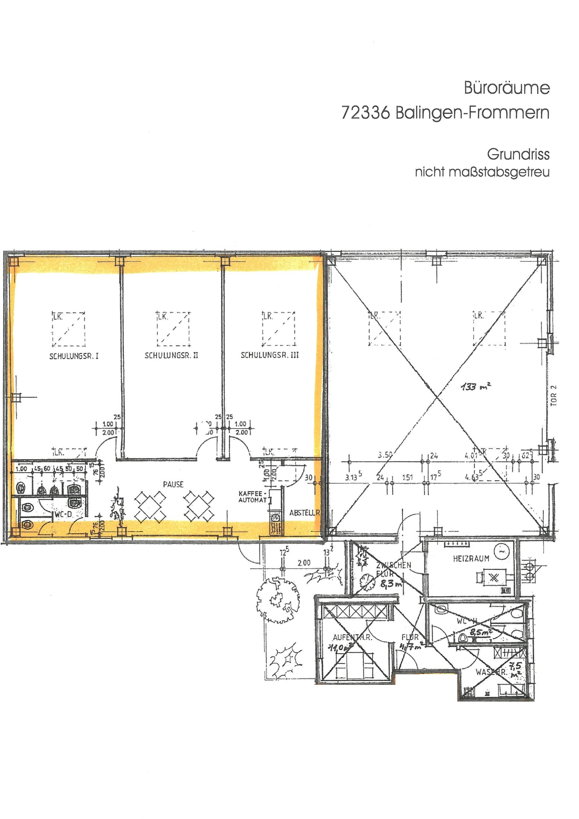
Vom offenen und lichtdurchfluteten Eingangsbereich erreicht man die 3 fast gleich großen Räume, welche bisher als Büroräume genutzt wurden. Alle drei Räume haben eine große Fensterfront und jeweils eine Lichtkuppel, die mittlere Kuppel läßt sich elektrisch öffnen.

Zur Einheit gehört ein separater Abstellraum, eine kleine Küchenzeile mit Spülbecken sowie ein Damen-WC und ein Herren-WC dazu.

Kurzfristig frei!

Ausstattung

Die Räumlichkeiten sind sehr schön, Fliesenboden im Eingangsbereich, Nadelfilz-Fußboden in den drei Räumen.

Integrierte Deckenlampen sind vorhanden, ebenso verschiedene Kabelkanäle/Stromanschlüsse.

Die Räume sind gut gedämmt mit Deckendämmung und starken Außenwanddämmungen.

Lage

Im Gewerbegebiet von Frommern, gut sichtbar von der Straße, könnten hier Ihre neuen Räumlichkeiten sein!

Gute Infrastruktur und Anbindung an Balingen und zur B27 mit genügend Parkplätzen.

Provision / Hinweise

Alle Angaben ohne Gewähr. Der Mieter hat eine Maklerprovision in Höhe von 2,38 Monats-Kaltmieten inklusive der gesetzlichen Mehrwertsteuer an Christiana Baur Immobilien zu bezahlen. Die Provision ist fällig bei Mietvertragsabschluss.

Interesse an dieser Immobilie?

Kontaktieren Sie uns für weitere Informationen oder eine Besichtigung.

Cookie Consent mit Real Cookie Banner