JUGENDSTILVILLA TOP SANIERT: 4-Familienhaus in Tailfingen

Beschreibung

Im Erdgeschoss ist die erste Wohnung mit ca. 108 m² Wfl. Diese ist aufgeteilt in einen Wohnbereich mit Holz-Ofen, eine Wohnküche, ein Schlafzimmer, ein Lesezimmer (welches früher ein Gewölbekeller war), ein Hauswirtschaftsraum, ein Badezimmer ausgestattet mit Dusche, Badewanne, Toilette und Waschtisch sowie einem Gäste-WC.

Im 1. Obergeschoss ist die zweite Wohnung mit rund 125 m² Wohnfläche. Hier sind 2 Kinderzimmer, ein Elternschlafzimmer, eine große Einbauküche mit Speisekammer, das Badezimmer mit Dusche, Wanne, Toilette, Waschtisch, Tageslichtfenster. Das Gäste-WC ist separat. Der offene Wohn- und Essbereich mit Holz-Ofen hat Zugang zum Balkon, wo man seinen eigenen Park bewundern kann.

Die dritte Wohnung ist eine Maisonette-Wohnung über 3 Stockwerke mit ca. 136 m² Wfl. Im 1. OG ist ein Gäste-WC, eine moderne Einbauküche mit Speisekammer, vom Essbereich über 2 Stufen ist man im Wohnbereich mit Fußbodenheizung und einem Holz-Ofen. Über die Treppe im Flur ist das Schlafzimmer, ein Büro und das Bad ausgestattet mit einer Badewanne, einer Dusche, einer Toilette, einem Bidet, einem Waschtisch und einem Fenster. Eine weitere Treppe führt in den Dachspitz in ein Studiozimmer.

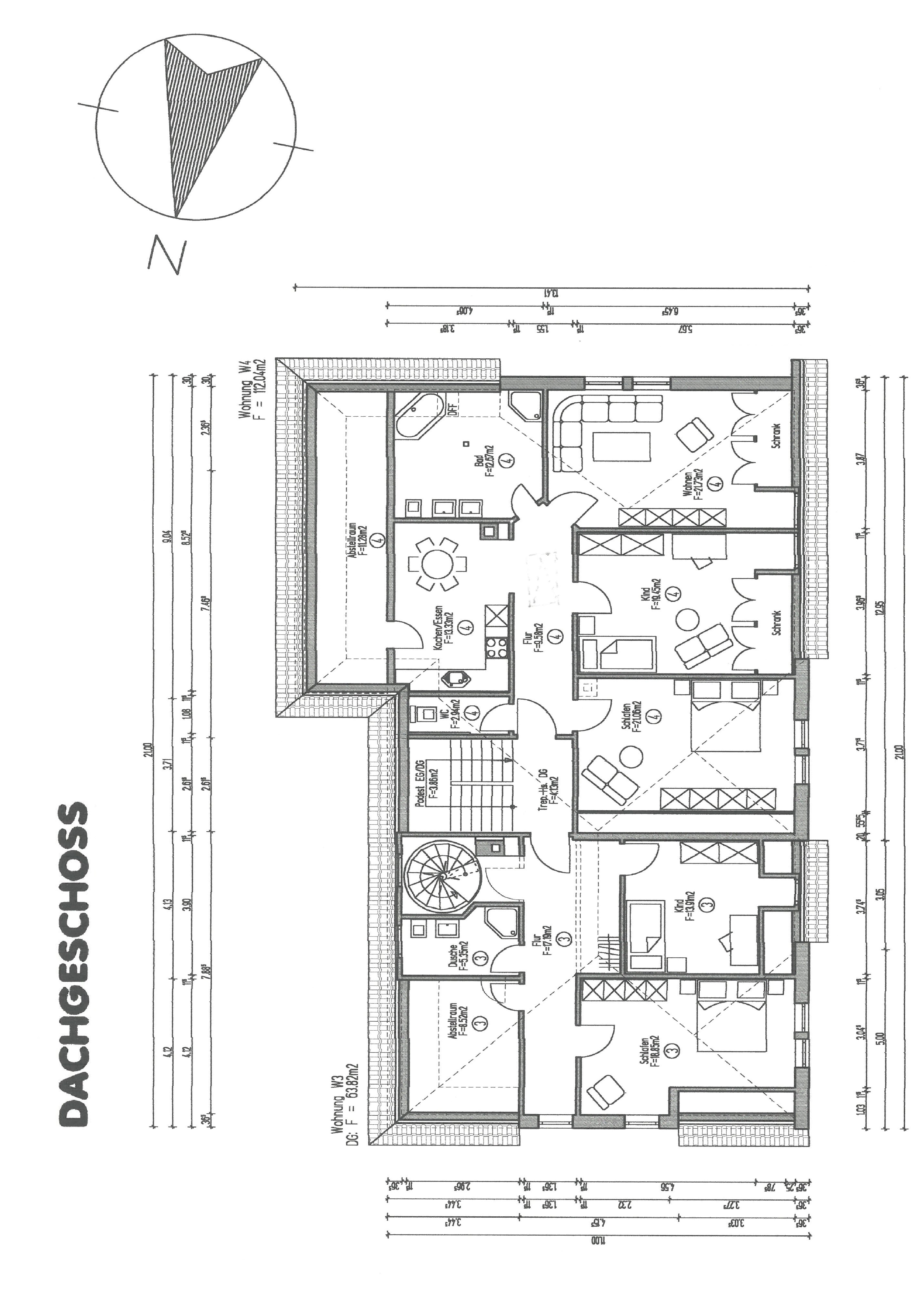
Im 2. Obergeschoss ist die vierte Wohnung mit rund 112 m² Wfl., welche sich über 2 Stockwerke verteilt. Neben dem Gäste-WC ist die moderne Küche mit Speisekammer, das Badezimmer verfügt über eine begehbare Dusche, eine eingelassene Badewanne, eine Toilette, ein Waschtisch und Tageslichtfenster. Des weiteren sind ein Schlafzimmer und der offene Wohn- und Essbereich vorhanden mit Treppe in den Spitz, wo zwei weitere Studiozimmer sind.

Im Erdgeschoss ist ein großes Zimmer, mit Echtholzparkett und Zierelementen um die Fenster. Hier sind auch der Heizraum und das Pelletlager.

Vor dem Haus ist eine tolle Gartenanlage mit Brunnen, 5 Stellplätzen und 3 Garagen.

Ausstattung

Das Haus wurde in den letzten Jahren komplett saniert und ist ausgestattet mit:

– 4 Bäder
– 4 Gäste-Toiletten
– 4 Küchen
– 3 Garagen
– Pelletheizung von 2023
– Elektrik, Wasser und Abwasser von 2007
– Kunststofffenster 2-fach isolierverglast von 2022-2025
– Parket, Terrazzo- und Fliesenböden
– Entkalkungs-/Enthärtungsanlage
– Glasfaser liegt in der Straße
– 4 Holz-Öfen

Lage

Auf einem sonnigen Grundstück mit 2.812 m² Fläche in Albstadt-Tailfingen befindet sich die Jugendstilvilla mit schöner Anlage.

Tailfingen liegt mit knapp 12.000 Einwohnern als zweitgrößter Ortsteil Albstadts schön eingebettet mitten auf der schwäbischen Alb und hat eine gute Nahversorgung mit allen Geschäften des täglichen Bedarfs, Ärzten, Apotheken, Kindergärten, Schulen und vieles mehr, sowie eine schnelle Anfahrt ins ca. 7 km entfernte Albstadt-Ebingen und ca. 20 km zum Zentrum von Balingen.

Provision / Hinweise

Zuzüglich zum Kaufpreis sind folgende Nebenkosten vom Käufer zu entrichten: Grunderwerbsteuer 5%, Notargebühren ca. 2% und Maklergebühren 3,57% inkl. der gesetzlichen Mehrwertsteuer. Bei Kaufpreis unter 100.000,- Euro beträgt die Maklergebühr pauschal 3.570,- Euro inkl. der gesetzlichen Mehrwertsteuer.

Interesse an dieser Immobilie?

Kontaktieren Sie uns für weitere Informationen oder eine Besichtigung.

Cookie Consent mit Real Cookie Banner