KAPITAL GUT ANGELEGT: 3-Zi. Wohnung in Ebingen

Beschreibung

Die gepflegte Wohnung wird seit Mai 2015 von zuverlässigen und liebenswerten Mietern bewohnt, welche gerne in Ihrem gewohnten Umfeld wohnen bleiben möchten. Daher bietet Ihnen dieses Objekt eine sorgenfreie Kapitalanlage.

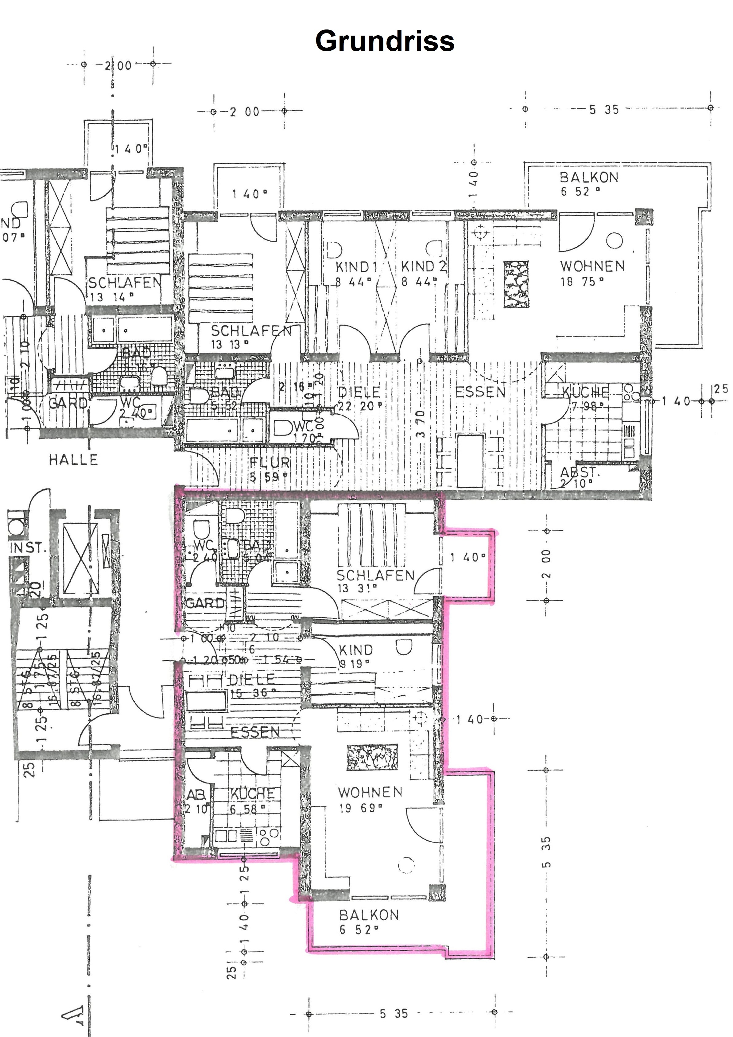
Nach der Wohnungstüre stehen Sie in der großzügigen Essdiele, von hier aus erreichen Sie bequem alle Räume. Die Küche ist separat, direkt daneben gibt es eine praktische Speisekammer. Auf der Südseite befindet sich das lichtdurchflutete Wohnzimmer mit großen Fensterflächen und direktem Zugang auf den verglasten Balkon. Es gibt einen weiteren kleineren Balkon, welchen man über das helle Schlafzimmer erreicht. Das dritte Zimmer ist ein ideales Kinderzimmer, Gästezimmer oder Büro. Das Bad ist ausgestattet mit einem Waschbecken, einer Dusche, einer Badewanne und einem Waschmaschinenanschluss. Das WC ist separat.

Zur Wohnung gehört ein Kellerabteil.

Energieausweis: Der Verbrauch des Hauses beträgt 112 kWh, Effizienzklasse D. 2018 wurde im Haus ein Gas-Blockheizkraftwerk eingebaut.

Ausstattung

– Fliesenböden in Küche + Bad
– Teppichböden in den anderen Räumen
– verglaster, großer Balkon
– kleiner Balkon vor dem Schlafzimmer
– Kellerraum im UG
– Fahrstuhl im Haus

Lage

Die Wohnung befindet sich im 1. Obergeschoss der beliebten Max & Moritz Hochhäuser in der Oststadt von Albstadt. Diese Lage bietet eine ideale Mischung aus Stadtnähe und Naturverbundenheit. Albstadt ist bekannt für seine idyllische Lage in der Schwäbischen Alb und verspricht eine hervorragende Lebensqualität.

Hier genießen Sie die Ruhe und den Ausblick auf die umliegenden Hügel, während Sie gleichzeitig nur kurze Wege zu allen Annehmlichkeiten des täglichen Bedarfs haben. Das Objekt ist gut an das öffentliche Verkehrsnetz angeschlossen, sodass Sie schnell und bequem in andere Teile der Stadt oder in die Umgebung gelangen können.

Provision / Hinweise

Zuzüglich zum Kaufpreis sind folgende Nebenkosten vom Käufer zu entrichten: Grunderwerbsteuer 5%, Notargebühren ca. 2% und Maklergebühren 3,57% inkl. der gesetzlichen Mehrwertsteuer. Bei Kaufpreis unter 100.000,- Euro beträgt die Maklergebühr pauschal 3.570,- Euro inkl. der gesetzlichen Mehrwertsteuer.

Interesse an dieser Immobilie?

Kontaktieren Sie uns für weitere Informationen oder eine Besichtigung.

Cookie Consent mit Real Cookie Banner