KAPITALANLAGE MIT RENDITE: vermietete 4-Zi.-Wohnung Stettberg

Beschreibung

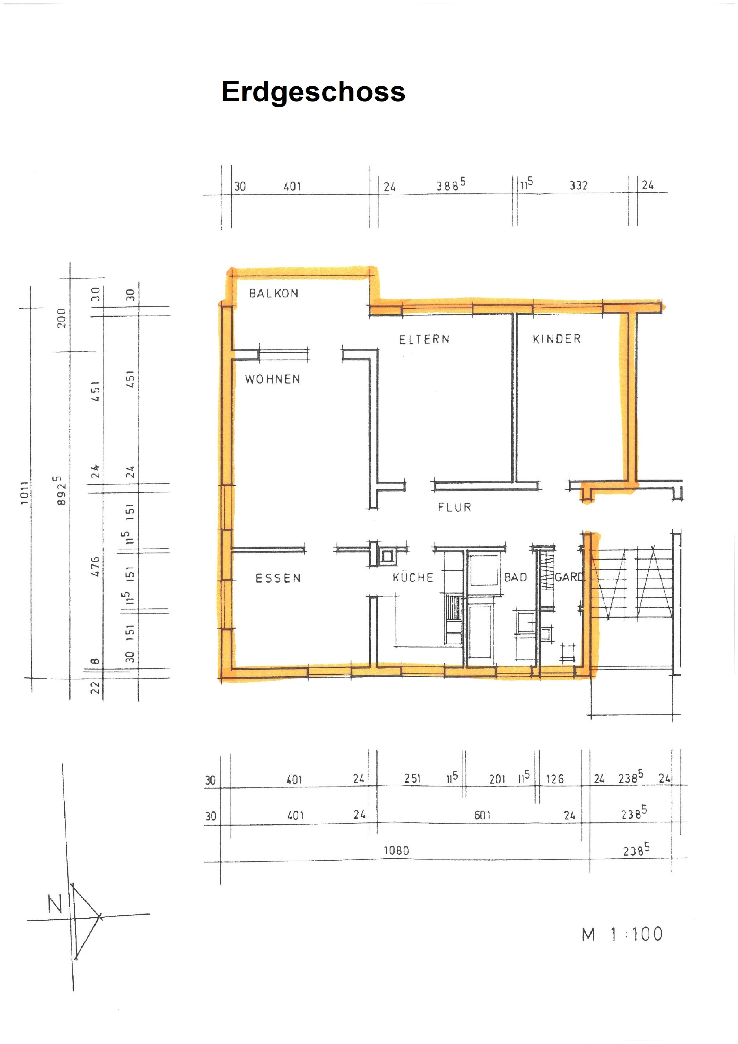
Entdecken Sie diese gut geschnittene 4-Zimmer-Wohnung zum Kauf, die sowohl Komfort als auch Funktionalität vereint. Mit einer Wohnfläche von 93,57 m² bietet diese Immobilie ein großzügiges Raumangebot.

Die Wohnung verfügt über zwei geräumige Schlafzimmer und ein modernes Badezimmer, das für Ihren täglichen Komfort ausgestattet ist mit separatem WC. Der offene Wohn-Essbereich schafft eine einladende Atmosphäre und ermöglicht einen nahtlosen Übergang zum Balkon mit Blick ins Grüne, wo Sie entspannen und die frische Luft genießen können.

Die Einbauküche ist praktisch und mit allen notwendigen Geräten ausgestattet. Die Wohnung präsentiert sich in gepflegtem Zustand.

Zusätzlich verfügt die Immobilie über einen Kellerraum, der zusätzlichen Stauraum bietet.
Die Wohnung ist vermietet und erzielt eine Kaltmiete von € 800 pro Monat, was eine attraktive Kapitalanlagemöglichkeit darstellt. Die monatlichen Hausgeldkosten belaufen sich auf 460 €.

Diese Immobilie bietet nicht nur ein Zuhause, sondern auch eine lukrative Investitionsmöglichkeit. Vereinbaren Sie noch heute einen Besichtigungstermin und überzeugen Sie sich selbst von den Vorzügen dieser Wohnung.

Ausstattung

Die 4-Zimmer-Wohnung sucht einen Kapitalanleger und ist ausgestattet mit:

– 2-fach isolierverglasten Kunststofffenstern
– Öl-Zentralheizung
– Teppichböden
– Kellerraum

Lage

Die attraktive Immobilie befindet sich im charmanten Wohngebiet Stettberg von Balingen, einer Stadt mit hervorragender Infrastruktur und hoher Lebensqualität. Die Lage eignet sich hervorragend für Kapitalanleger, die eine lukrative Investitionsmöglichkeit suchen.

– Stettberg ist bekannt für seine ruhige und dennoch zentrumsnahe Wohnlage.
– Die Immobilie liegt nur wenige Gehminuten vom Stadtzentrum entfernt, wo Sie eine Vielzahl von Einkaufsmöglichkeiten, Restaurants und Cafés vorfinden.
– Eine ausgezeichnete Anbindung an das öffentliche Verkehrsnetz gewährleistet eine bequeme Erreichbarkeit anderer Städte und Regionen.
– Schulen, Kindergärten und medizinische Einrichtungen sind in der Nähe, was diese Immobilie auch für Familien interessant macht.
– Die naturbelassene Umgebung mit ihren Wander- und Radwegen bietet zahlreiche Freizeitmöglichkeiten.
– Die Autobahnanbindung ermöglicht eine schnelle und unkomplizierte Erreichbarkeit wichtiger Wirtschaftszentren.

Dieser Standort verspricht nicht nur eine solide Wertsteigerung, sondern auch eine stetige Mieternachfrage, was ihn zu einer hervorragenden Wahl für Kapitalanleger macht.

Provision / Hinweise

Zuzüglich zum Kaufpreis sind folgende Nebenkosten vom Käufer zu entrichten: Grunderwerbsteuer 5%, Notargebühren ca. 2% und Maklergebühren 3,57% inkl. der gesetzlichen Mehrwertsteuer. Bei Kaufpreis unter 100.000,- Euro beträgt die Maklergebühr pauschal 3.570,- Euro inkl. der gesetzlichen Mehrwertsteuer.

Interesse an dieser Immobilie?

Kontaktieren Sie uns für weitere Informationen oder eine Besichtigung.

Cookie Consent mit Real Cookie Banner