PERFEKT FÜR MEINE ZIELE: Gewerbeanwesen in BL-Frommern

Beschreibung

Das Gebäude wurde im Jahr 1973 in massiver Bauweise erstellt und hat eine Teilunterkellerung. Dadurch sind beide Ebenen befahrbar und ideal für viele Dienstleistungsbetriebe, Handwerksbetriebe und Verwaltungsgebäude.

Eine Modernisierung und eine Anpassung an den bestehenden Gewerbebetrieb wurde im Jahr 2007 gemacht.

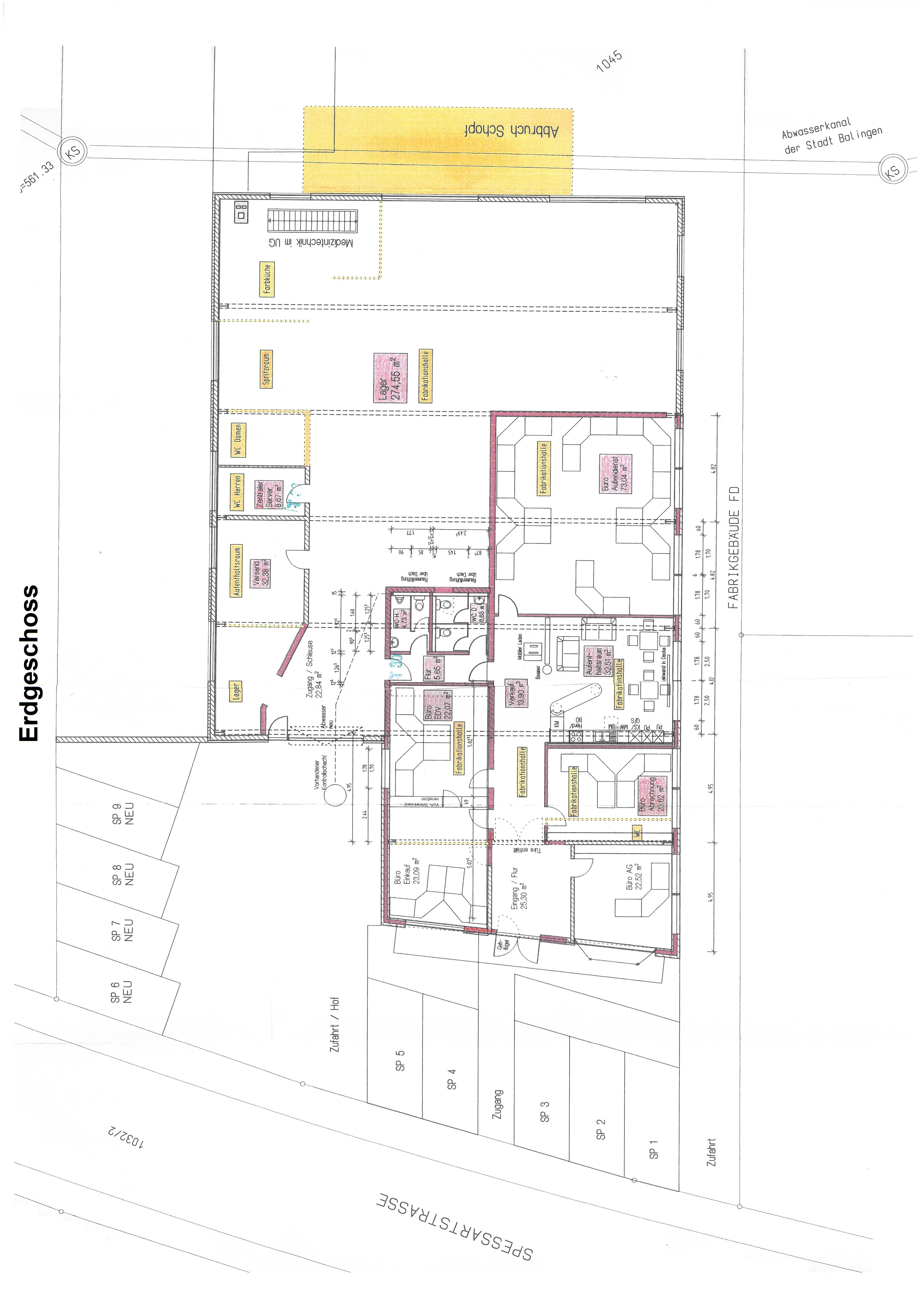
Das EG teilt sich wie folgt auf: Im Eingangsbereich ist der Empfang und danach folgen 3 helle Büroräume. Ein großer Aufenthaltsraum mit Teeküche, sowie ein großer Besprechungsraum schließt sich den Räumen an. Die Fläche für diesen Bereich beträgt ca. 178 m². Erreichbar vom Lager und von den Büroräumen sind die modernen Toiletten. Die Lagerflächen und Nebenflächen betragen insgesamt 592 m².

Das Lager ist über ein Rolltor befahrbar mit Versandbereich. Hier führt eine Treppe direkt ins Untergeschoss mit einem Schulungsraum, Heiztechnik und weiterer Lagerfläche. Über das Rolltor können auch PKW abgestellt werden.

Rund um die Halle sind KFZ-Stellplätze, insgesamt ca. 24 Stück.

Ausstattung

Das gesamte Gewerbeanwesen wird bezugsfrei zum 31.12.2026. Es ist TOP gepflegt und modernisiert:

– hochwertige Linoleumböden
– moderne und großzügige Fensterflächen
– ansprechende Fassade und Eingangsbereich
– gepflegte Räumlichkeiten
– Öl-Zentralheizung
– isolierte Fassade
– Glasfaserleitungen im gesamten Gebäude.

Bezugsfrei nach Absprache.

Energieausweis ist in Arbeit.

Lage

Dieses Gewerbeanwesen liegt im Mischgebiet von Frommern. Ruhige Umgebung und ein ansprechendes Gebäude erwartet Sie hier. Ein optimaler Platz für Ihre Selbstständigkeit.

Frommern ist der größte Teilort von Balingen und hat eine gute Anbindung zur B27 und zur B463.

Provision / Hinweise

Zuzüglich zum Kaufpreis sind folgende Nebenkosten vom Käufer zu entrichten: Grunderwerbsteuer (5%), Notargebühren (ca. 2%) und Maklergebühren (3,57% inkl. der gesetzlichen Mehrwertsteuer).

Interesse an dieser Immobilie?

Kontaktieren Sie uns für weitere Informationen oder eine Besichtigung.

Cookie Consent mit Real Cookie Banner