RAUMWUNDER: Einfamilienhaus in Bitz

Beschreibung

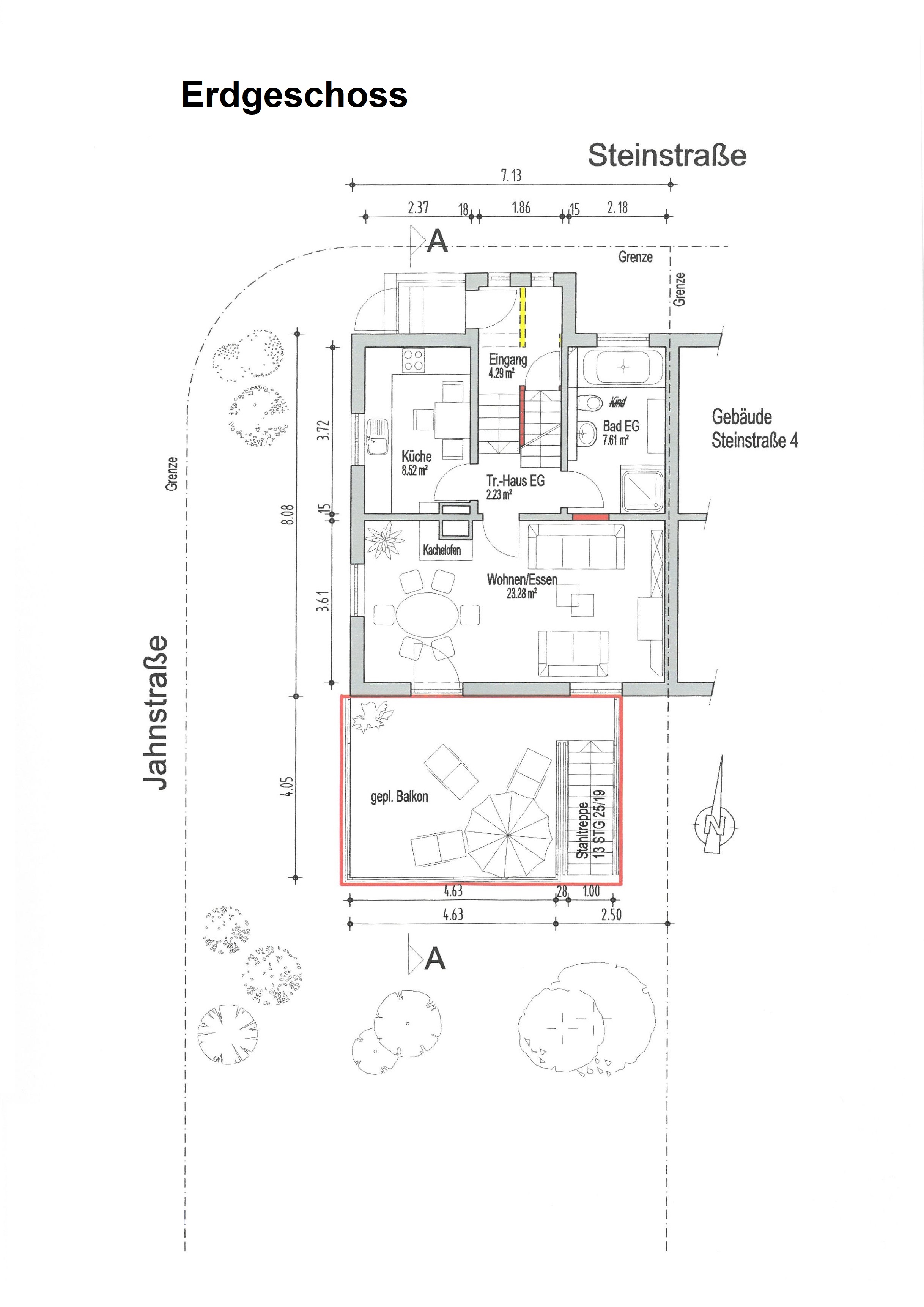
Im Erdgeschoss befindet man sich im Herzen des Hauses. Gepflegte Einbauküche mit Elektrogeräten, ein stylisches Badezimmer mit Badewanne, Dusche, Waschtisch Toilette und Tageslichtfenster. Der offene Wohn- und Essbereich mit Kachelofen, der entweder per Holz oder Öl beheizt werden kann ist licht durchflutet und bietet Zugang zum überdachten Balkon mit Wendeltreppe in den Garten.

Im Dachgeschoss sind 3 Schlafzimmer sowie ein weiteres Bad mit Dusche, WC und Waschbecken, einem Dachfenster und der Zugang in den Dachspitz. Mit Blick aus der Gaube, kann man zu bestimmten Zeiten die Alpen bewundern!

Im Untergeschoss sind 2 Kellerräume, ein drittes Bad mit Badewanne, Dusche, WC, Waschbecken und einem Waschmaschinenanschluss sowie ein ausgebautes Gäste-Zimmer.

Unter dem großen Balkon befindet sich ein Carport, abgerundet wird das Angebot durch eine Einzelgarage mit Stauraum im Spitz.

Der Energieausweis ist in Bearbeitung.

Ausstattung

Die Doppelhaushälfte ist sehr gepflegt und ausgestattet mit:

– 3 Bäder
– Holz und Öl Kachelofen, mit Lüftungsschächte in alle Räume
– überdachter Balkon
– Carport
– Garage

Lage

Das Wohnhaus befindet sich in Bitz, einer Gemeinde im Zollernalbkreis in Baden-Württemberg. Bitz bietet eine idyllische Umgebung mit einer Mischung aus ländlichem Flair und moderner Infrastruktur.

Schulen, Kindergärten und medizinische Einrichtungen sind in der Nähe verfügbar. Nur wenige Gehminuten entfernt finden Sie lokale Geschäfte, Supermärkte und Restaurants, die für den täglichen Bedarf sorgen.

Die Umgebung lädt zu Spaziergängen, Radtouren und anderen Outdoor-Aktivitäten ein. Der nahe gelegene Schwäbische Albtrauf bietet atemberaubende Wanderrouten und malerische Ausblicke.

Provision / Hinweise

Zuzüglich zum Kaufpreis sind folgende Nebenkosten vom Käufer zu entrichten: Grunderwerbsteuer 5%, Notargebühren ca. 2% und Maklergebühren 3,57% inkl. der gesetzlichen Mehrwertsteuer. Bei Kaufpreis unter 100.000,- Euro beträgt die Maklergebühr pauschal 3.570,- Euro inkl. der gesetzlichen Mehrwertsteuer.

Interesse an dieser Immobilie?

Kontaktieren Sie uns für weitere Informationen oder eine Besichtigung.

Cookie Consent mit Real Cookie Banner