SCHÖNER WOHNEN IM DORF: 2-Familienhaus, Ostdorf

Beschreibung

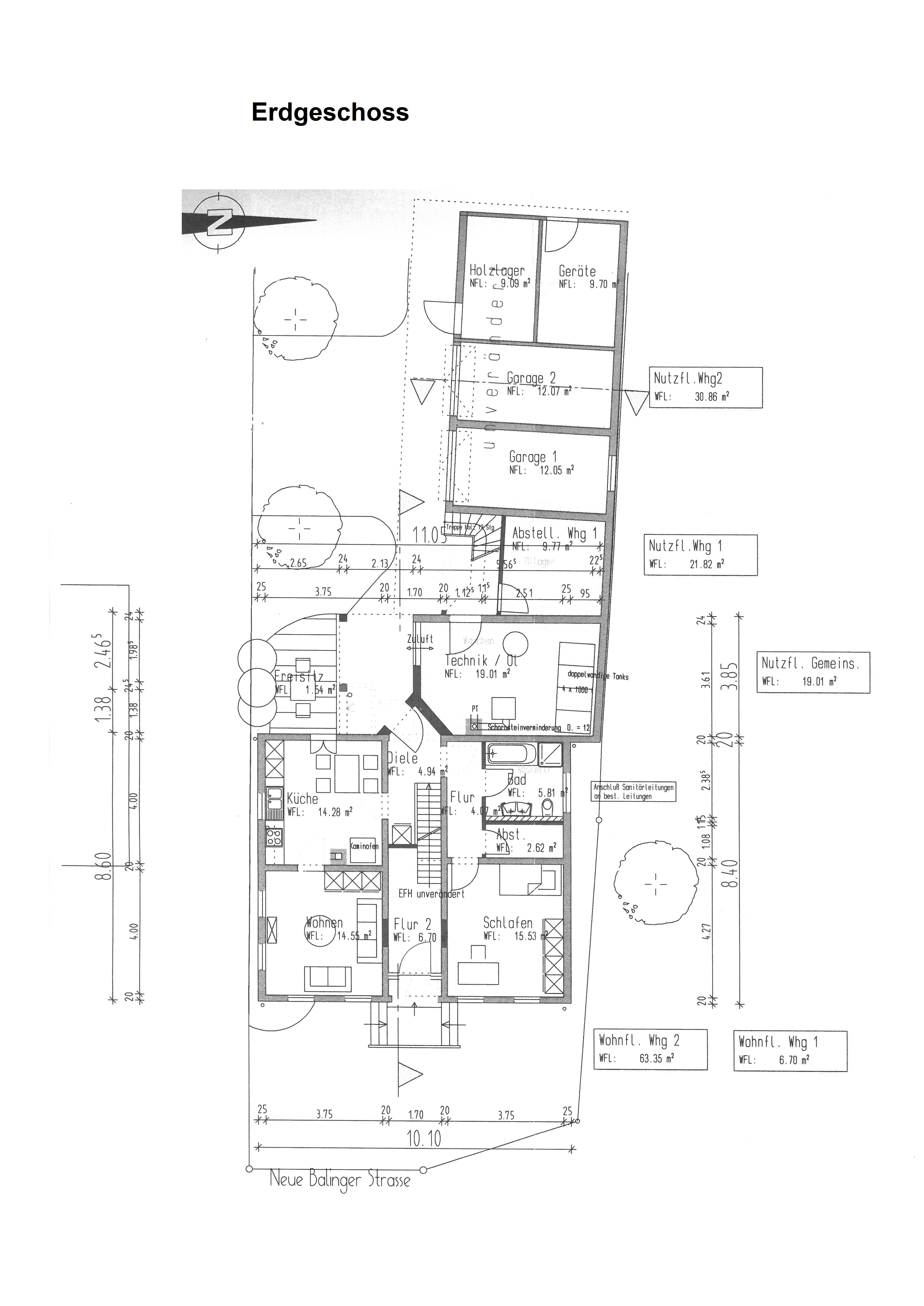
CHARMANTES WOHNHAUS, welches im Jahr 1905 erbaut und 1999 komplett saniert wurde. Zum Haus selbst gehören zwei große Garagen und zwei große Lagerräume plus Bühnenräume über den Garagen und der Werkstatt mit einer Fläche von ca. 86 m². Hinter dem Haus ist der schöne und ebene Garten, welcher vielseitig genutzt werden kann.

Die Aufteilung des Hauses ist wie folgt:

Die Wohnung im EG hat eine Wohnfläche von ca. 63 m² und besteht aus zwei schönen Räumen, einer Wohnküche, einem Abstellraum und dem Bad mit Wanne, Dusche, WC und Waschbecken.

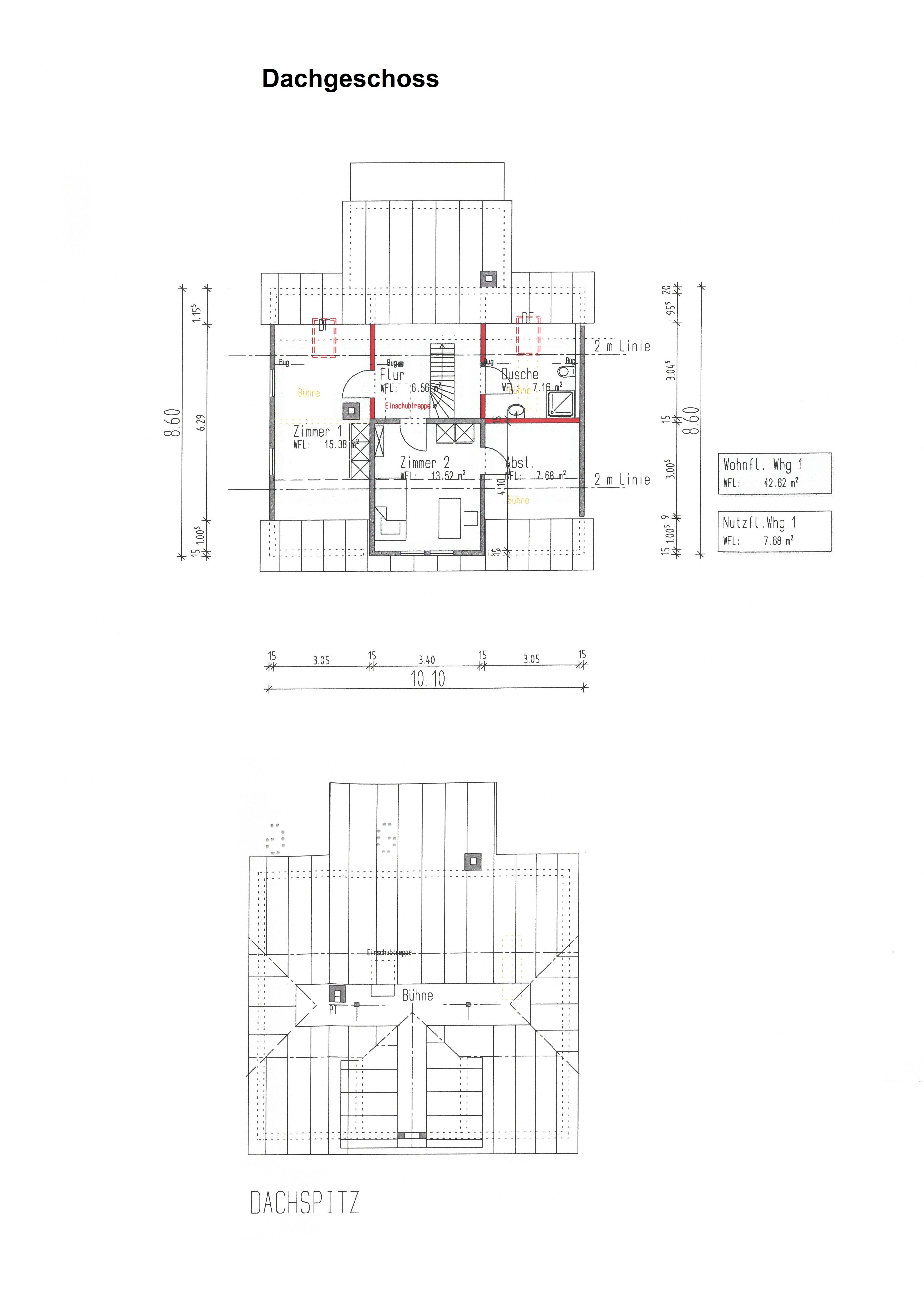
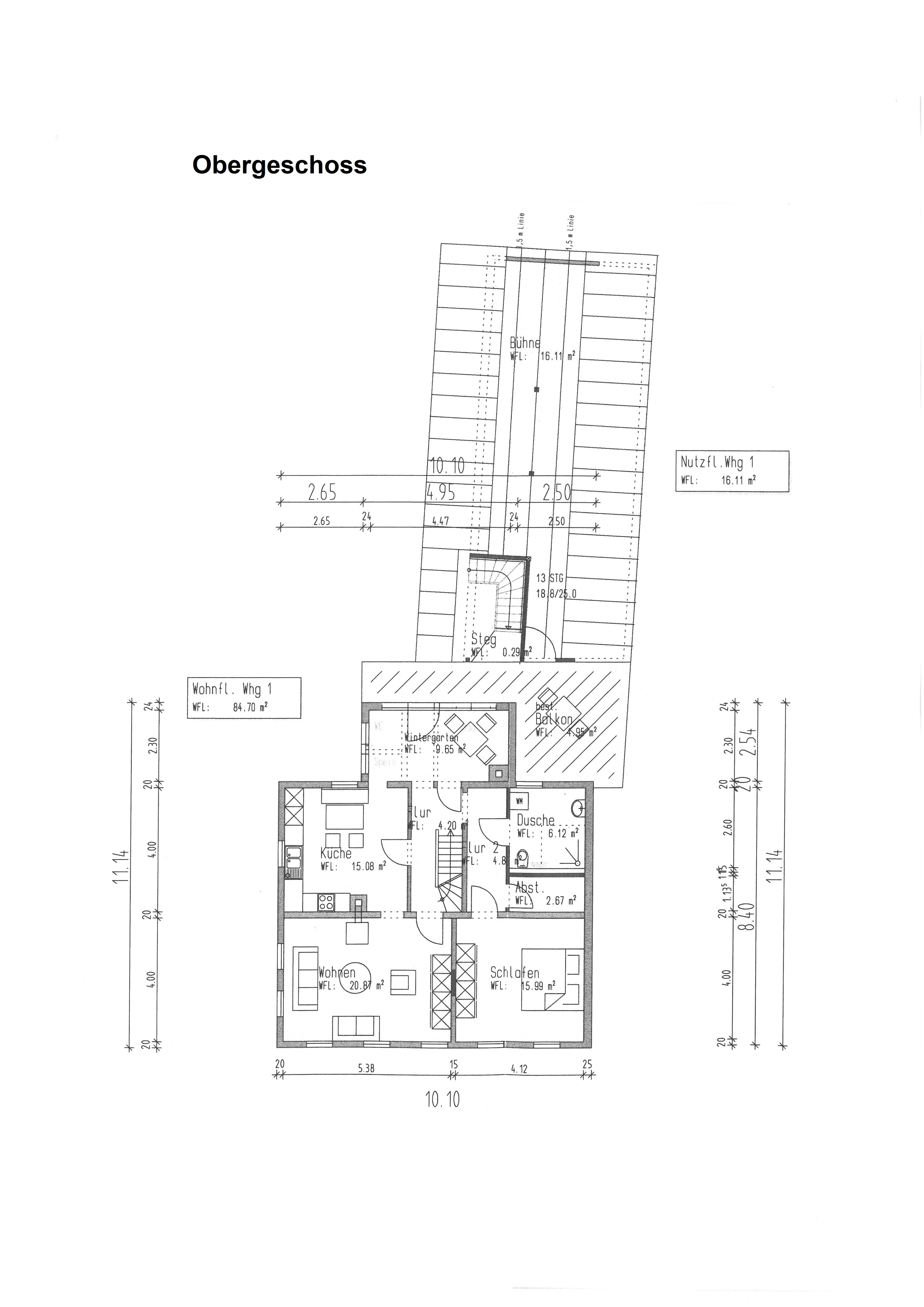
Die Wohnung im OG bezaubert mit einem besonders schönen Wohnzimmer. Ein weiteres Highlight ist der Wintergarten mit großzügigem Balkon. Über die Treppe geht es in das teilweise ausgebaute Dachgeschoss mit zwei weiteren Zimmern. Die Wohnfläche beträgt hier 106 m².

Ein Gewölbekeller ist im Haus.

Ausstattung

Sehr gut saniertes und gepflegtes Wohnhaus mit dem schönen Flair des ursprünglichen Hauses:

– Holzvertäfelungen + schöne alte Holztüren
– Holzdielenböden
– Holzsprossenfenster
– Wintergarten
– Öl-Zentralheizung (1999)
– 2 Garagen, weitere sind möglich
– DG noch weiter ausbaufähig

Energiebedarf des Hauses beträgt 166,88 kWh, Effizienzklasse F.

Lage

Das stilvolle 2-Familienhaus steht auf 915 m² mitten in Ostdorf, einem beliebten Teilort von Balingen. Ostdorf ist nur 2 Kilometer von Balingen entfernt und hat eine Einwohnerzahl von knapp über 1500.

Die Versorgung für den alltäglichen Bedarf ist bestens: Ein kleiner Edeka-Einkaufsladen, der ausreichend ausgestattet ist, mit Leckereien täglich frisch vom Bäcker beliefert wird und einem Kindergarten. Mit öffentlichen Verkehrsmitteln erreicht man in kurzer Zeit die Grundschule „Auf Schmiden“ und die weiterführenden Schulen wie Gemeinschaftsschule, Realschule, Gymnasium sowie die Balinger Berufsschulen.

Ostdorf bietet seinen Bewohner ein attraktives Freizeitangebot mit verschieden Vereinen wie z. B. Leichtathletik, Handball, Musikverein, freiwillige Feuerwehr und mehr!

Provision / Hinweise

Zuzüglich zum Kaufpreis sind folgende Nebenkosten vom Käufer zu entrichten: Grunderwerbsteuer (5%), Notargebühren (ca. 2%) und Maklergebühren (3,57% inkl. der gesetzlichen Mehrwertsteuer).

Interesse an dieser Immobilie?

Kontaktieren Sie uns für weitere Informationen oder eine Besichtigung.

Cookie Consent mit Real Cookie Banner