ZUHAUSE ANKOMMEN: DHH in Balingen

Beschreibung

Entdecken Sie diese charmante Doppelhaushälfte mit 5 Zimmern auf einer Wohnfläche von 125 m². Dieses Haus bietet ausreichend Platz für Ihre Familie, einen ebenen und schönen Garten sowie eine Garage.

Im Eingangsbereich ist Platz für eine Garderobe, ein separates WC, ein Zimmer, die Einbauküche und ein großes Wohnzimmer mit Zugang in den Wintergarten, auf die schöne Süd-Terrasse und in den Garten.

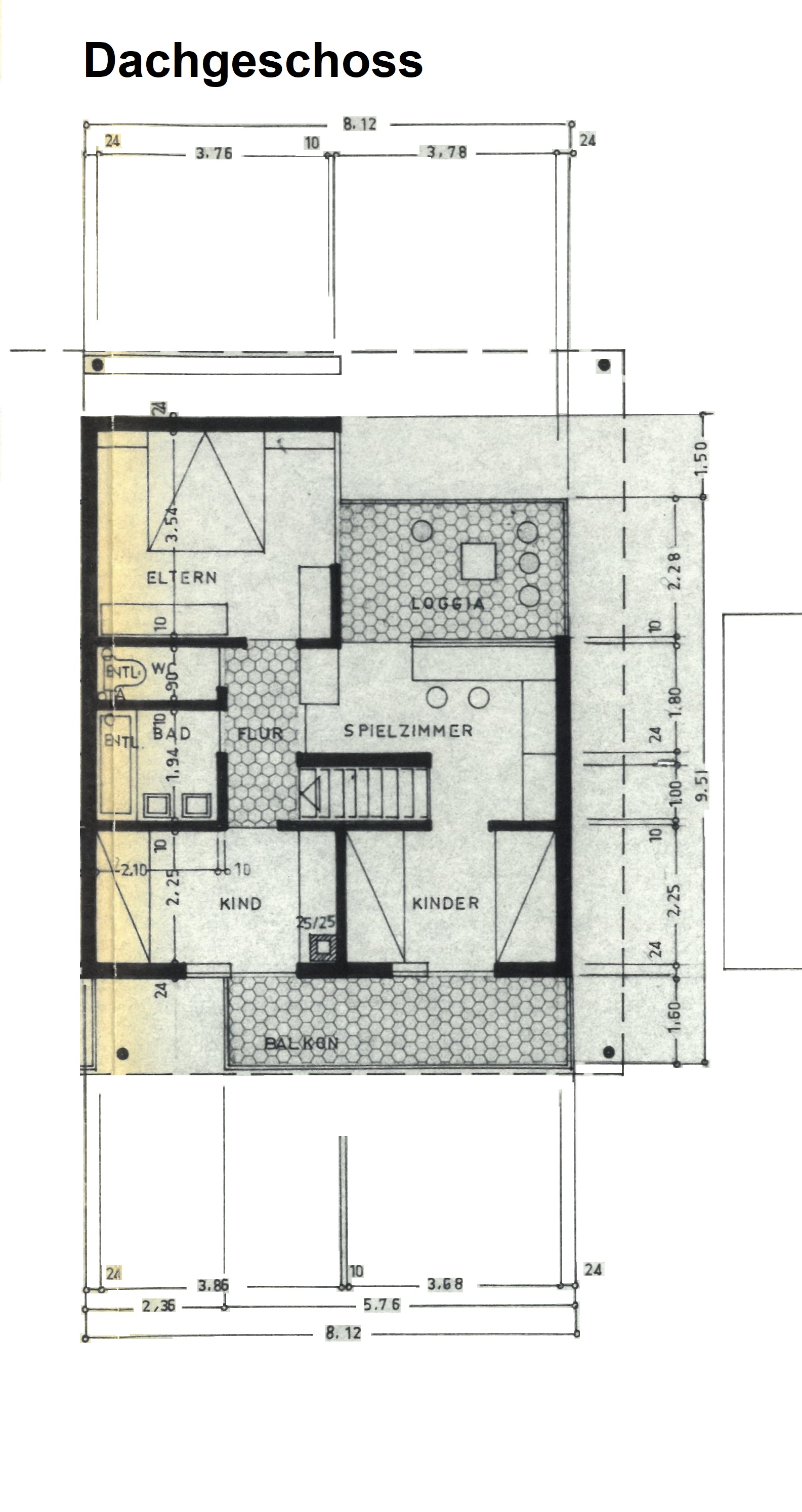
Im Dachgeschoss sind 4 Zimmer, 2 Balkone und das Familienbad.

Die Böden sind mit einer Kombination aus Fliesen und Teppichboden versehen, was für eine angenehme Wohnatmosphäre sorgt. Zusätzlich bietet das Anwesen eine Garage für Ihr Fahrzeug, einen gepflegten Garten zum Entspannen und einen Wintergarten, der das ganze Jahr über für gemütliche Stunden sorgt.

Dieses Haus ist eine großartige Gelegenheit für alle, die ein Projekt mit viel Potenzial suchen und es in ihr Traumhaus verwandeln möchten.

Ausstattung

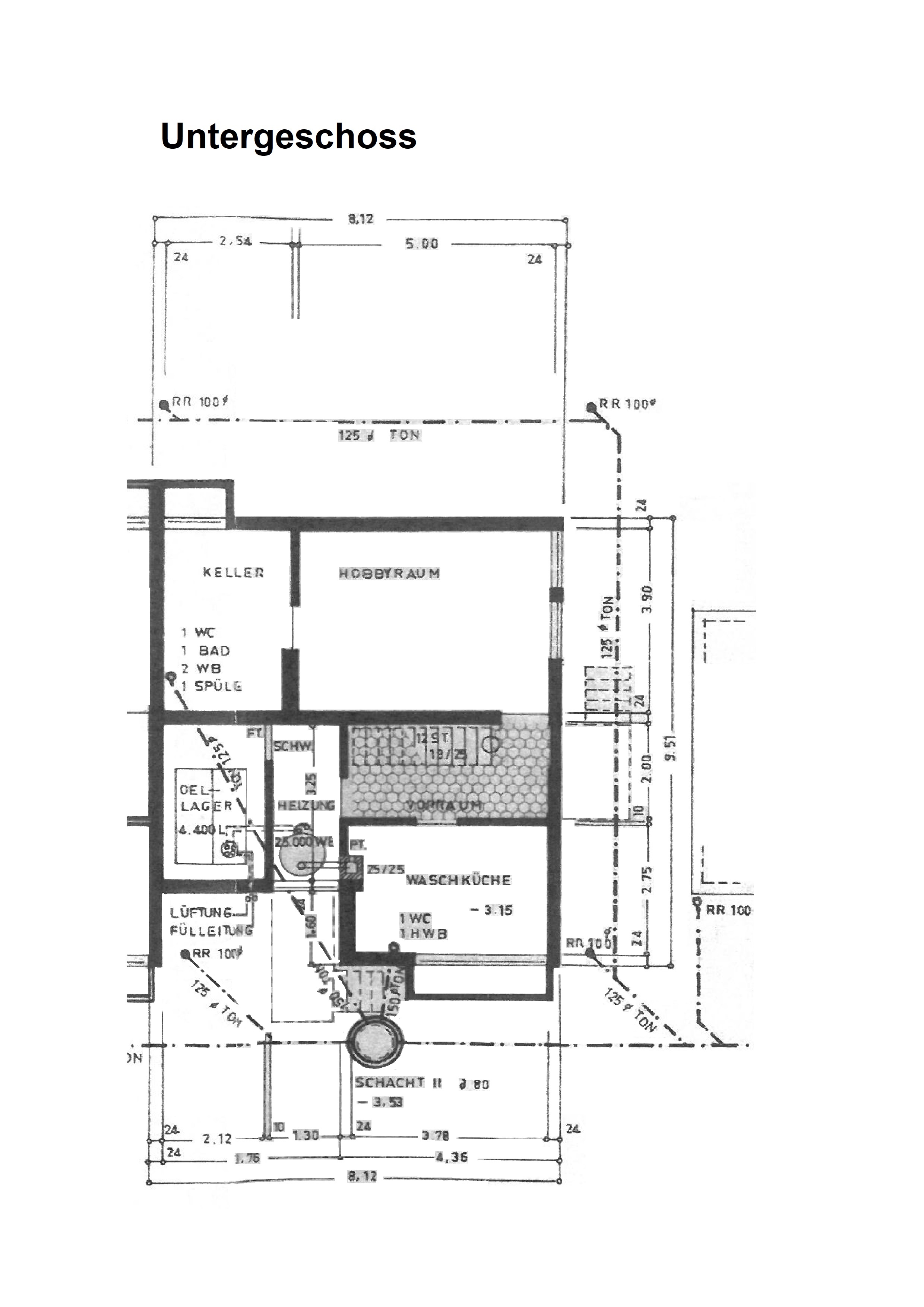
– Öl Zentralheizung (Niedertemperatur, BJ 2003)
– Kunststofffenster (1995)
– Einbauküche
– Fliesen/Teppichböden

Lage

Die Immobilie liegt in einem ruhigen Wohnviertel, das dennoch fußläufig an alle wesentlichen Annehmlichkeiten angeschlossen ist.

Familien werden die Nähe zu den Schulen und Kindergärten zu schätzen wissen.

Die Bundesstraße B27 ist nur wenige Minuten entfernt und bietet eine direkte Verbindung zur Autobahn A81.

Provision / Hinweise

Zuzüglich zum Kaufpreis sind folgende Nebenkosten vom Käufer zu entrichten: Grunderwerbsteuer 5%, Notargebühren ca. 2% und Maklergebühren 3,57% inkl. der gesetzlichen Mehrwertsteuer. Bei Kaufpreis unter 100.000,- Euro beträgt die Maklergebühr pauschal 3.570,- Euro inkl. der gesetzlichen Mehrwertsteuer.

Interesse an dieser Immobilie?

Kontaktieren Sie uns für weitere Informationen oder eine Besichtigung.

Cookie Consent mit Real Cookie Banner